お気に入りを解除しました。
AXIS南船場(旧長堀橋アーバンライフ)
物件番号:A205171
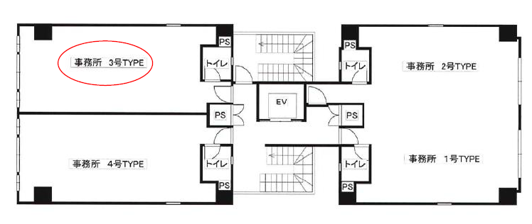
6階12.4坪

- この物件の賃料の価格帯(共益費込)
- この部屋は成約済みです
| 物件名 | AXIS南船場(旧長堀橋アーバンライフ) 【このビルのその他の募集階】 |
||
|---|---|---|---|
| 住所 | 大阪府大阪市中央区南船場1丁目18番24号 心斎橋・長堀橋でよく検索されるその他の物件 |
||
| 構造(規模) | 鉄骨鉄筋コンクリート造地上11階地下1階建 | ||
| 築年月 | 1987年2月1日 | ||
| 坪数 |
12.4坪 |
||
| 階数 | 6階 | ||
| 保証金 | - | ||
| 敷金 | - | ||
| 礼金 | - | ||
| 沿線 最寄駅 |
地下鉄堺筋線 長堀橋駅 徒歩1分 (長堀橋駅の賃貸事務所) 地下鉄長堀鶴見緑地線 長堀橋駅 徒歩1分 (長堀橋駅の賃貸事務所) 地下鉄長堀鶴見緑地線 松屋町駅 徒歩6分 (松屋町駅の賃貸事務所) |
||
| アクセス | 新大阪駅まで電車15分 大阪駅梅田駅まで電車9分 関西空港まで電車50分、車45分 伊丹空港まで車20分 高速入口:環状線長堀入口 |
||
| EV基数 | 1基 | 人荷EV基数 | - |
| 空調タイプ | 個別 | ||
| 備考 | |||

とこちらのオフィスビルは室内にトイレ、ミニキッチンがある個性派物件。2018年に外観を大規模改修をおこないスタイリッシュな印象に生まれ変われました。
- お電話でお問い合わせ(無料)
-
平日13時までのお問い合わせで
当日に物件をご紹介!
お電話の場合「物件番号:A205171」
をお伝えください

