お気に入りを解除しました。
若杉西梅田
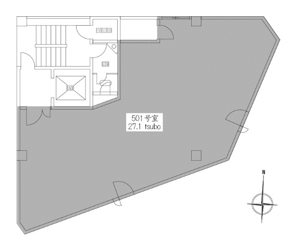
物件番号:H101501
5階27.1坪

- この物件の賃料の価格帯(共益費込)
- 坪@12,001円~@15,000円
| 物件名 | 若杉西梅田 【このビルのその他の募集階】 |
||
|---|---|---|---|
| 住所 | 大阪府大阪市福島区福島5丁目1番1号 西梅田・堂島・福島でよく検索されるその他の物件 |
||
| 構造(規模) | 鉄骨造地上10階建 | ||
| 築年月 | 1990年6月 | ||
| 坪数 |
27.1坪 |
||
| 階数 | 5階 | ||
| 保証金 | |||
| 敷金 | 賃料の12カ月分 | ||
| 礼金 | - | ||
| 沿線 最寄駅 |
JR大阪環状線 福島駅 徒歩2分 (福島駅の賃貸事務所) JR東西線 新福島駅 徒歩2分 (新福島駅の賃貸事務所) 地下鉄四つ橋線 西梅田駅 徒歩7分 (西梅田駅の賃貸事務所) |
||
| アクセス | 新大阪駅まで電車16分 大阪駅梅田駅まで電車9分 関西空港まで電車61分、車45分 伊丹空港まで車20分 高速入口:福島・梅田入口 |
||
| EV基数 | 1基 | 人荷EV基数 | - |
| 空調タイプ | 個別 | ||
| 備考 | |||
- お電話でお問い合わせ(無料)
-
平日13時までのお問い合わせで
当日に物件をご紹介!
お電話の場合「物件番号:H101501」
をお伝えください
