お気に入りを解除しました。
ルセオン博労町
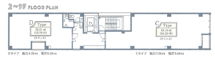
物件番号:A204317
4階15.79坪

- この物件の賃料の価格帯(共益費込)
- 坪@15,001円~@20,000円
| 物件名 | ルセオン博労町 【このビルのその他の募集階】 続きを表示 ▼ |
||
|---|---|---|---|
| 住所 | 大阪府大阪市中央区博労町3丁目1番10号 本町・堺筋本町・心斎橋・長堀橋でよく検索されるその他の物件 |
||
| 構造(規模) | 鉄骨造10階建 | ||
| 築年月 | 2025年10月予定 | ||
| 坪数 |
15.79坪 |
||
| 階数 | 4階 | ||
| 保証金 | |||
| 敷金 | 賃料の10カ月分 | ||
| 礼金 | - | ||
| 沿線 最寄駅 |
地下鉄御堂筋線 心斎橋駅 徒歩6分 (心斎橋駅の賃貸事務所) 地下鉄御堂筋線 本町駅 徒歩7分 (本町駅の賃貸事務所) |
||
| アクセス | |||
| EV基数 | 1基 | 人荷EV基数 | - |
| 空調タイプ | |||
| 備考 | |||
- お電話でお問い合わせ(無料)
-
平日13時までのお問い合わせで
当日に物件をご紹介!
お電話の場合「物件番号:A204317」
をお伝えください

