お気に入りを解除しました。
四ツ橋セントラル
物件番号:B203104
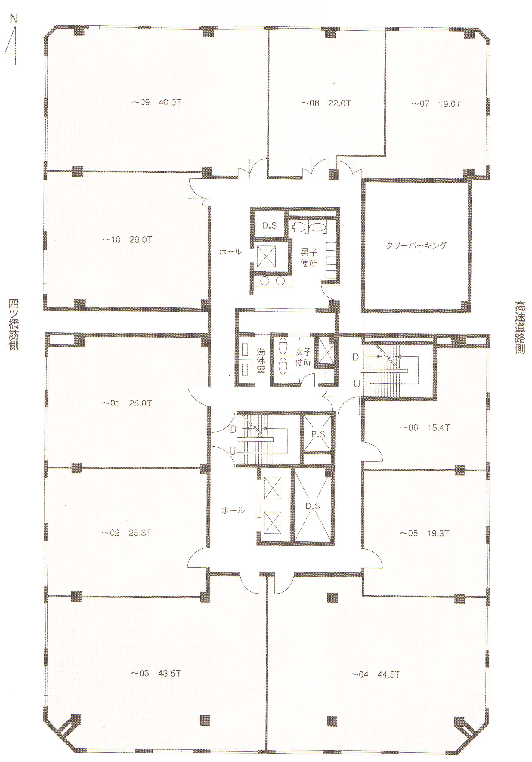
3階81.7坪

- この物件の賃料の価格帯(共益費込)
- この部屋は成約済みです
| 物件名 | 四ツ橋セントラル 【このビルのその他の募集階】 |
||
|---|---|---|---|
| 住所 | 大阪府大阪市西区新町1丁目3番12号 心斎橋・長堀橋・四ツ橋でよく検索されるその他の物件 |
||
| 構造(規模) | 鉄骨鉄筋コンクリート造地上9階地下1階建 | ||
| 築年月 | 1977年3月1日 | ||
| 坪数 |
81.7坪 |
||
| 階数 | 3階 | ||
| 保証金 | - | ||
| 敷金 | - | ||
| 礼金 | - | ||
| 沿線 最寄駅 |
地下鉄四つ橋線 四ツ橋駅 徒歩2分 (四ツ橋駅の賃貸事務所) 地下鉄長堀鶴見緑地線 心斎橋駅 徒歩4分 (心斎橋駅の賃貸事務所) 地下鉄御堂筋線 心斎橋駅 徒歩4分 (心斎橋駅の賃貸事務所) |
||
| アクセス | 新大阪駅まで電車16分 大阪駅梅田駅まで電車10分 関西空港まで電車50分、車40分 伊丹空港まで車20分 高速入口:環状線四ツ橋・阿波座・信濃橋入口 |
||
| EV基数 | 3基 | 人荷EV基数 | - |
| 空調タイプ | 個別 | ||
| 備考 | |||

四ツ橋セントラルビルは、大通り(四ツ橋筋)に面した大型のオフィスビルです。エレベーターは3基設置、貸会議室も完備、地下1階には喫煙室を設けており、オフィスの付帯設備が整っております。1階にはコンビニや大手飲食店チェーンが入居中です。
- お電話でお問い合わせ(無料)
-
平日13時までのお問い合わせで
当日に物件をご紹介!
お電話の場合「物件番号:B203104」
をお伝えください
