お気に入りを解除しました。
土佐堀ダイビル
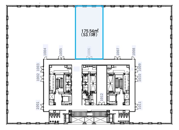
物件番号:B101201
10階53.1坪

- この物件の賃料の価格帯(共益費込)
- この部屋は成約済みです
| 物件名 | 土佐堀ダイビル 【このビルのその他の募集階】 |
||
|---|---|---|---|
| 住所 | 大阪府大阪市西区土佐堀2丁目2番4号 肥後橋・本町でよく検索されるその他の物件 |
||
| 構造(規模) | 鉄骨造地上17階地下1階建 | ||
| 築年月 | 2009年7月1日 | ||
| 坪数 |
53.1坪 |
||
| 階数 | 10階 | ||
| 保証金 | - | ||
| 敷金 | - | ||
| 礼金 | - | ||
| 沿線 最寄駅 |
地下鉄四つ橋線 肥後橋駅 徒歩6分 (肥後橋駅の賃貸事務所) 京阪線(本線・中之島線) 中之島駅 徒歩6分 (中之島駅の賃貸事務所) 地下鉄中央線 阿波座駅 徒歩10分 (阿波座駅の賃貸事務所) |
||
| アクセス | 新大阪駅まで電車21分 大阪駅梅田駅まで電車15分 関西空港まで電車61分、車45分 伊丹空港まで車20分 高速入口:環状線堂島・中之島・中之島西 |
||
| EV基数 | 10基 | 人荷EV基数 | - |
| 空調タイプ | 個別 | ||
| 備考 | |||

平成21年築竣工の築浅ハイグレードオフィス。敷地内に緑の空間も有り大変贅沢な作りになっています。
- お電話でお問い合わせ(無料)
-
平日13時までのお問い合わせで
当日に物件をご紹介!
お電話の場合「物件番号:B101201」
をお伝えください

