お気に入りを解除しました。
新大阪南方
物件番号:D101358
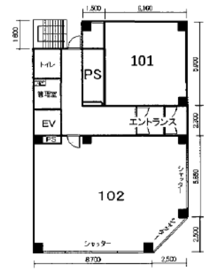
1階27.35坪

- この物件の賃料の価格帯(共益費込)
- この部屋は成約済みです
| 物件名 | 新大阪南方 【このビルのその他の募集階】 |
||
|---|---|---|---|
| 住所 | 大阪府大阪市淀川区西中島3丁目14番27号 新大阪・西中島でよく検索されるその他の物件 |
||
| 構造(規模) | 鉄筋コンクリート造地上5階建 | ||
| 築年月 | 1986年3月1日 | ||
| 坪数 |
27.35坪 |
||
| 階数 | 1階 | ||
| 保証金 | - | ||
| 敷金 | - | ||
| 礼金 | - | ||
| 沿線 最寄駅 |
地下鉄御堂筋線 西中島南方駅 徒歩2分 (西中島南方駅の賃貸事務所) 地下鉄御堂筋線 新大阪駅 徒歩9分 (新大阪駅の賃貸事務所) JR東海道本線 新大阪駅 徒歩9分 (新大阪駅の賃貸事務所) |
||
| アクセス | 新大阪駅まで電車5分 大阪駅梅田駅まで電車9分 関西空港まで電車65分、車50分 伊丹空港まで車20分 高速入口:11号線加島入口 |
||
| EV基数 | 1基 | 人荷EV基数 | - |
| 空調タイプ | 個別 | ||
| 備考 | 新耐震基準適合。 | ||

大阪メトロ御堂筋線「西中島南方駅」徒歩2分の立地に位置するビル。角地に建つ視認性が高いビルで、1階にヤマト運輸さんが入居しているため、利便性が高いです。御影石タイルのエレベーターホールが、落ち着きのある空間を演出しています。また基準階の床は木目調で、白い壁と木の温かみのあるシンプルかつ清潔感のある雰囲気となっています。
- お電話でお問い合わせ(無料)
-
平日13時までのお問い合わせで
当日に物件をご紹介!
お電話の場合「物件番号:D101358」
をお伝えください
