お気に入りを解除しました。
日本生命姫路白銀町
物件番号:Z101001
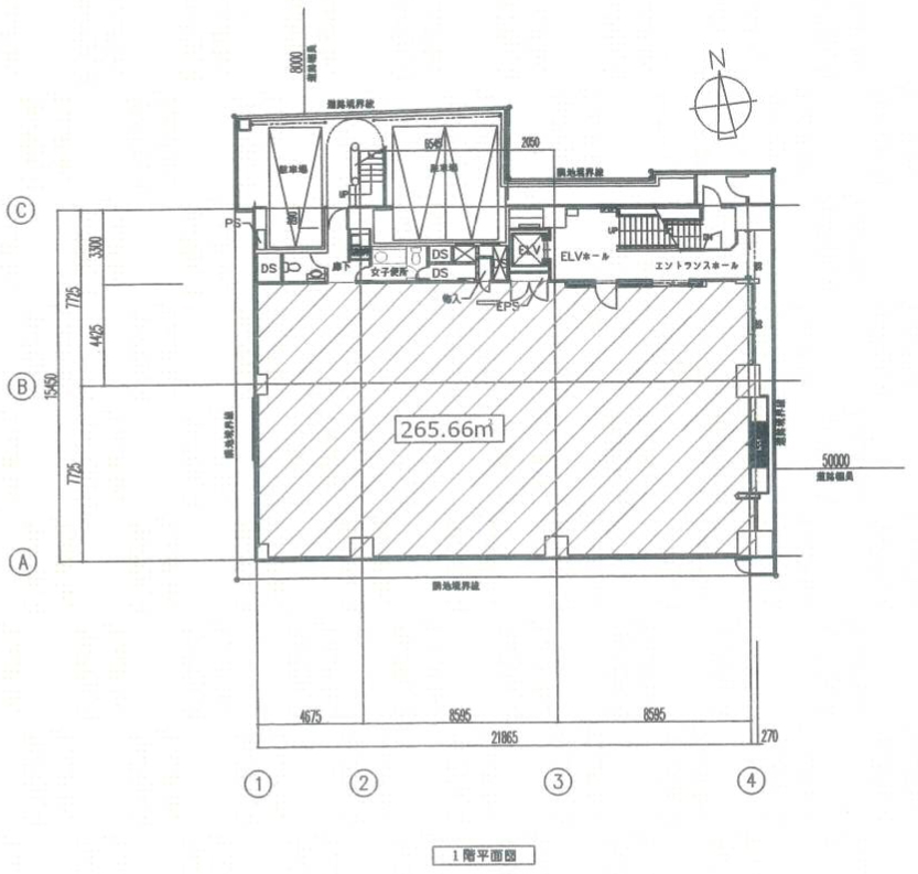
1階80.36坪

- この物件の賃料の価格帯(共益費込)
- 坪@8,001円~@12,000円
| 物件名 | 日本生命姫路白銀町 【このビルのその他の募集階】 |
||
|---|---|---|---|
| 住所 | 兵庫県姫路市白銀町18番地 でよく検索されるその他の物件 |
||
| 構造(規模) | 鉄骨鉄筋コンクリート造地上7階地下1階 | ||
| 築年月 | 1984年11月1日 | ||
| 坪数 |
80.36坪 |
||
| 階数 | 1階 | ||
| 保証金 | |||
| 敷金 | 賃料の12カ月分 | ||
| 礼金 | - | ||
| 沿線 最寄駅 |
|||
| アクセス | |||
| EV基数 | 1基 | 人荷EV基数 | - |
| 空調タイプ | 個別 | ||
| 備考 | |||
- お電話でお問い合わせ(無料)
-
平日13時までのお問い合わせで
当日に物件をご紹介!
お電話の場合「物件番号:Z101001」
をお伝えください
類似物件のご紹介
アジア太平洋トレードセンターITM棟(ATC)
-
-
住所 大阪府大阪市住之江区南港北2丁目1番10号 交通 地下鉄中央線 コスモスクエア駅 徒歩5分
竣工 1994年4月1日 構造 鉄骨鉄筋コンクリート造地上12階地下2階塔屋1階建

