お気に入りを解除しました。
EH-NANBA 13
物件番号:A509311
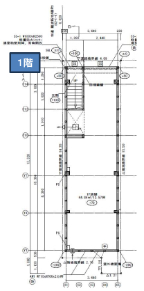
1階13.5坪

- この物件の賃料の価格帯(共益費込)
- この部屋は成約済みです
| 物件名 | EH-NANBA 13 【このビルのその他の募集階】 |
||
|---|---|---|---|
| 住所 | 大阪府大阪市中央区難波3丁目6番15号 なんば・日本橋でよく検索されるその他の物件 |
||
| 構造(規模) | 木造2階建 | ||
| 築年月 | 2024年7月31日 | ||
| 坪数 |
13.5坪 |
||
| 階数 | 1階 | ||
| 保証金 | - | ||
| 敷金 | - | ||
| 礼金 | - | ||
| 沿線 最寄駅 |
地下鉄御堂筋線 なんば駅 徒歩1分 (なんば駅の賃貸事務所) 地下鉄千日前線 なんば駅 徒歩1分 (なんば駅の賃貸事務所) |
||
| アクセス | |||
| EV基数 | - | 人荷EV基数 | - |
| 空調タイプ | 個別 | ||
| 備考 | |||
- お電話でお問い合わせ(無料)
-
平日13時までのお問い合わせで
当日に物件をご紹介!
お電話の場合「物件番号:A509311」
をお伝えください

