お気に入りを解除しました。
シェラトン都ホテル大阪
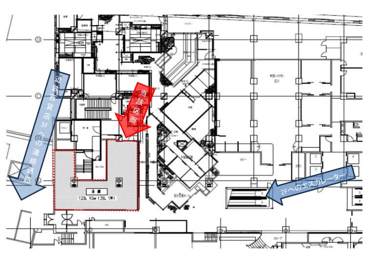
物件番号:G101617
3階39.1坪

- この物件の賃料の価格帯(共益費込)
- 坪@12,001円~@15,000円
| 物件名 | シェラトン都ホテル大阪 【このビルのその他の募集階】 |
||
|---|---|---|---|
| 住所 | 大阪府大阪市天王寺区上本町6丁目1番55号 OBP・京橋・ 森之宮でよく検索されるその他の物件 |
||
| 構造(規模) | 鉄骨鉄筋コンクリート造(4階まで)鉄骨造(5階以上)地下3階地上21階塔屋3階建 | ||
| 築年月 | 1985年 | ||
| 坪数 |
39.1坪 |
||
| 階数 | 3階 | ||
| 保証金 | |||
| 敷金 | 賃料の3カ月分 | ||
| 礼金 | - | ||
| 沿線 最寄駅 |
近鉄線 大阪上本町駅 徒歩1分 (大阪上本町駅の賃貸事務所) |
||
| アクセス | 新大阪駅まで電車28分 大阪駅梅田駅まで電車26分 関西空港まで電車55分、車40分 伊丹空港まで車18分 |
||
| EV基数 | - | 人荷EV基数 | - |
| 空調タイプ | |||
| 備考 | |||
- お電話でお問い合わせ(無料)
-
平日13時までのお問い合わせで
当日に物件をご紹介!
お電話の場合「物件番号:G101617」
をお伝えください

