お気に入りを解除しました。
ルクス
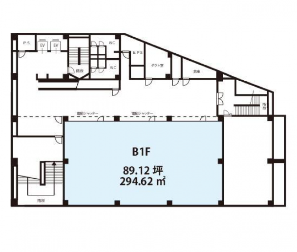
物件番号:P801113
地下1階89.12坪

- この物件の賃料の価格帯(共益費込)
- 坪@8,001円~@12,000円
| 物件名 | ルクス 【このビルのその他の募集階】 |
||
|---|---|---|---|
| 住所 | 大阪府東大阪市川俣1丁目1番41号 でよく検索されるその他の物件 |
||
| 構造(規模) | 鉄筋鉄骨コンクリート造地上8階地下2階 | ||
| 築年月 | 1991年7月 | ||
| 坪数 |
89.12坪 |
||
| 階数 | 地下1階 | ||
| 保証金 | |||
| 敷金 | 賃料の6カ月分 | ||
| 礼金 | - | ||
| 沿線 最寄駅 |
地下鉄中央線 |
||
| アクセス | |||
| EV基数 | - | 人荷EV基数 | - |
| 空調タイプ | 個別 | ||
| 備考 | |||
- お電話でお問い合わせ(無料)
-
平日13時までのお問い合わせで
当日に物件をご紹介!
お電話の場合「物件番号:P801113」
をお伝えください
類似物件のご紹介
アジア太平洋トレードセンターITM棟(ATC)
-
-
住所 大阪府大阪市住之江区南港北2丁目1番10号 交通 地下鉄中央線 コスモスクエア駅 徒歩5分
竣工 1994年4月1日 構造 鉄骨鉄筋コンクリート造地上12階地下2階塔屋1階建

