お気に入りを解除しました。
アクア堂島NBFタワー
物件番号:C304107
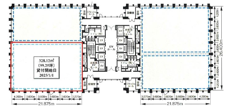
12階99.25坪
- この物件の賃料の価格帯(共益費込)
- この部屋は成約済みです
| 物件名 | アクア堂島NBFタワー 【このビルのその他の募集階】 |
||
|---|---|---|---|
| 住所 | 大阪府大阪市北区堂島浜1丁目4番16号 梅田・西梅田・堂島・福島でよく検索されるその他の物件 |
||
| 構造(規模) | 鉄骨・鉄骨鉄筋コンクリート造地上19階地下2階建 | ||
| 築年月 | 1995年10月1日 | ||
| 坪数 |
99.25坪 |
||
| 階数 | 12階 | ||
| 保証金 | - | ||
| 敷金 | - | ||
| 礼金 | - | ||
| 沿線 最寄駅 |
JR東西線 北新地駅 徒歩4分 (北新地駅の賃貸事務所) 京阪線(本線・中之島線) 大江橋駅 徒歩4分 (大江橋駅の賃貸事務所) 地下鉄四つ橋線 西梅田駅 徒歩5分 (西梅田駅の賃貸事務所) |
||
| アクセス | 新大阪駅まで電車18分 大阪駅梅田駅まで電車12分 関西空港まで電車61分、車45分 伊丹空港まで車20分 高速入口:環状線堂島・中之島入口 |
||
| EV基数 | 6基 | 人荷EV基数 | 2基 |
| 空調タイプ | 個別 | ||
| 備考 | 19階建ての高層ビル2棟「アクア堂島NBFタワー」「アクア堂島東館」と、低層棟「フォンターナ」の3棟で構成されています。 NBFタワーは基準階面積約350坪、エレベーターは常用6基、非常用2基の計8基あり、ストレスフリーです。4分割まで対応可能で、どの貸室も明るく採光が取れるように設計されています。 喫煙コーナー、リフレッシュコーナー、貸会議室などのスペースもあり地下には平面・機械式駐車場、駐輪場が設けられています。 |
||

竣工当初はカーテンウォールの3つの高層ビルが合体したような外観に圧倒されましたが、新築のビルが周辺に増えてなおその威厳は保たれています。高層階のワンフロアはは堂島川と阪神高速を見下ろし、周辺のオフィスビルが見渡せる圧巻のロケーションです。
- お電話でお問い合わせ(無料)
-
平日13時までのお問い合わせで
当日に物件をご紹介!
お電話の場合「物件番号:C304107」
をお伝えください

