お気に入りを解除しました。
ミフネ難波
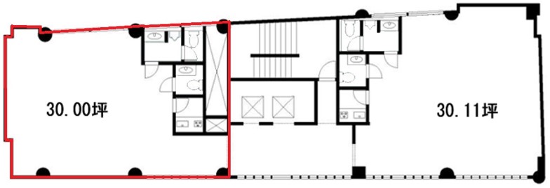
物件番号:A509101
4階30坪

- この物件の賃料の価格帯(共益費込)
- この部屋は成約済みです
| 物件名 | ミフネ難波 【このビルのその他の募集階】 |
||
|---|---|---|---|
| 住所 | 大阪府大阪市中央区難波1丁目4番6号 なんば・日本橋でよく検索されるその他の物件 |
||
| 構造(規模) | 鉄骨鉄筋コンクリート造地上9階地下2階建 | ||
| 築年月 | 1970年11月1日 | ||
| 坪数 |
30坪 |
||
| 階数 | 4階 | ||
| 保証金 | - | ||
| 敷金 | - | ||
| 礼金 | - | ||
| 沿線 最寄駅 |
地下鉄御堂筋線 なんば駅 徒歩1分 (なんば駅の賃貸事務所) 地下鉄千日前線 なんば駅 徒歩1分 (なんば駅の賃貸事務所) 地下鉄堺筋線 日本橋駅 徒歩4分 (日本橋駅の賃貸事務所) |
||
| アクセス | 新大阪駅まで電車16分 大阪駅梅田駅まで電車11分 関西空港まで電車45分、車45分 伊丹空港まで車20分 高速入口:環状線湊町・高津入口 |
||
| EV基数 | 2基 | 人荷EV基数 | - |
| 空調タイプ | 個別 | ||
| 備考 | |||
- お電話でお問い合わせ(無料)
-
平日13時までのお問い合わせで
当日に物件をご紹介!
お電話の場合「物件番号:A509101」
をお伝えください
