お気に入りを解除しました。
ハートランド江坂
物件番号:I1065310
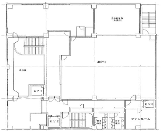
7階31.4坪

- この物件の賃料の価格帯(共益費込)
- この部屋は成約済みです
| 物件名 | ハートランド江坂 【このビルのその他の募集階】 |
||
|---|---|---|---|
| 住所 | 大阪府吹田市豊津町9番44号 江坂・千里中央・箕面でよく検索されるその他の物件 |
||
| 構造(規模) | 鉄筋コンクリート造地上8階地下1階建 | ||
| 築年月 | 1985年4月 | ||
| 坪数 |
31.4坪 |
||
| 階数 | 7階 | ||
| 保証金 | - | ||
| 敷金 | - | ||
| 礼金 | - | ||
| 沿線 最寄駅 |
地下鉄御堂筋線 江坂駅 徒歩1分 (江坂駅の賃貸事務所) |
||
| アクセス | 新大阪駅まで電車8分 大阪駅梅田駅まで電車17分 関西空港まで電車68分、車59分 伊丹空港まで車19分 高速入口:豊中・豊中南入口 |
||
| EV基数 | 1基 | 人荷EV基数 | - |
| 空調タイプ | |||
| 備考 | ・駅近 ・新耐震基準適合 ・空中店舗可能 |
||

地下鉄御堂筋線『江坂』駅から徒歩1~2分程、新御堂から西へ一本入った『江坂ウエストストリート』に建つビルです。周辺にはスーパーや飲食店など多くあり、にぎやかな通りとなっています。ドラッグストアや居酒屋など様々なテナントが入居しています。
- お電話でお問い合わせ(無料)
-
平日13時までのお問い合わせで
当日に物件をご紹介!
お電話の場合「物件番号:I1065310」
をお伝えください

