お気に入りを解除しました。
千里中央ツインビル別館
物件番号:O102104
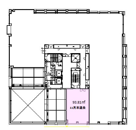
3階28.37坪
- この物件の賃料の価格帯(共益費込)
- この部屋は成約済みです
| 物件名 | 千里中央ツインビル別館 【このビルのその他の募集階】 |
||
|---|---|---|---|
| 住所 | 大阪府豊中市新千里西町1丁目1番4号 でよく検索されるその他の物件 |
||
| 構造(規模) | 鉄骨鉄筋コンクリート造地上4階地下2階塔屋1階建 | ||
| 築年月 | 1998年4月1日 | ||
| 坪数 |
28.37坪 |
||
| 階数 | 3階 | ||
| 保証金 | - | ||
| 敷金 | - | ||
| 礼金 | - | ||
| 沿線 最寄駅 |
地下鉄御堂筋線 千里中央駅 徒歩5分 (千里中央駅の賃貸事務所) |
||
| アクセス | |||
| EV基数 | 2基 | 人荷EV基数 | - |
| 空調タイプ | 個別 | ||
| 備考 | |||

大阪の副都心として発展の進む千里中央のビジネス地区に1998年に竣工。今日のビジネス環境の多様化にも応えられる最新の機能を備えています。また採光用吹き抜けを配したエレベーターホール、中庭アート、回廊を抱かせる渡り廊下など、特徴ある空間に創造により、その存在感を際立たせています。
- お電話でお問い合わせ(無料)
-
平日13時までのお問い合わせで
当日に物件をご紹介!
お電話の場合「物件番号:O102104」
をお伝えください

