お気に入りを解除しました。
甲賀
物件番号:A109115
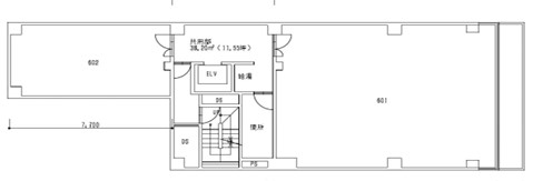
6階12坪

- この物件の賃料の価格帯(共益費込)
- 坪@3,000円~@8,000円
| 物件名 | 甲賀 【このビルのその他の募集階】 |
||
|---|---|---|---|
| 住所 | 大阪府大阪市中央区備後町1丁目6番1号 淀屋橋・北浜・本町・堺筋本町でよく検索されるその他の物件 |
||
| 構造(規模) | 鉄骨鉄筋コンクリート地上8階建 | ||
| 築年月 | 1977年 | ||
| 坪数 |
12坪 |
||
| 階数 | 6階 | ||
| 保証金 | |||
| 敷金 | 賃料の3カ月分 | ||
| 礼金 | 賃料の2カ月分 | ||
| 沿線 最寄駅 |
地下鉄堺筋線 堺筋本町駅 徒歩3分 (堺筋本町駅の賃貸事務所) 地下鉄中央線 堺筋本町駅 徒歩5分 (堺筋本町駅の賃貸事務所) 地下鉄堺筋線 北浜駅 徒歩7分 (北浜駅の賃貸事務所) |
||
| アクセス | 新大阪駅まで電車19分 大阪駅梅田駅まで電車13分 関西空港まで電車53分、車51分 伊丹空港まで車23分 高速入口:環状線高麗橋入口 |
||
| EV基数 | 1基 | 人荷EV基数 | - |
| 空調タイプ | 個別 | ||
| 備考 | ・空中店舗可能 | ||

レンガ色のタイル貼りがぱっと目を引く外観。オフィス街の中心部にある8階建てのビルです。1階には茶房が入居しており、ちょっとしたランチや休憩に便利にお使いいただけます。建物内に駐輪スペースもあり、自転車利用の方にもオススメです。
- お電話でお問い合わせ(無料)
-
平日13時までのお問い合わせで
当日に物件をご紹介!
お電話の場合「物件番号:A109115」
をお伝えください
