お気に入りを解除しました。
東亜
物件番号:A112408
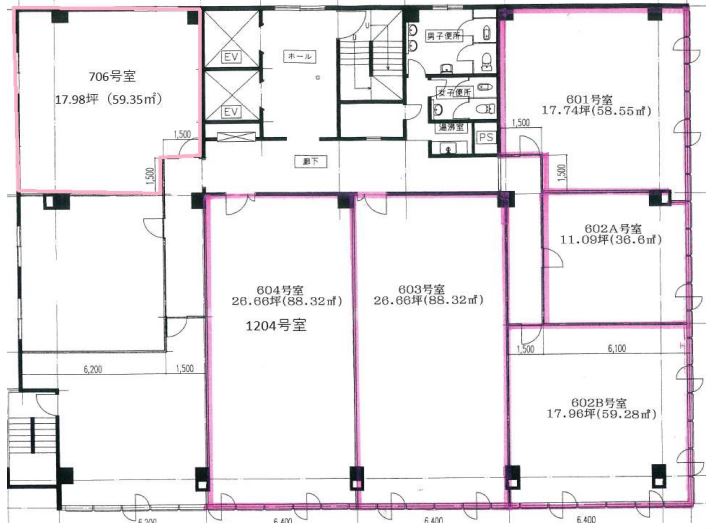
6階73.45坪
- この物件の賃料の価格帯(共益費込)
- この部屋は成約済みです
| 物件名 | 東亜 【このビルのその他の募集階】 |
||
|---|---|---|---|
| 住所 | 大阪府大阪市中央区南本町4丁目5番7号 本町・堺筋本町でよく検索されるその他の物件 |
||
| 構造(規模) | 鉄筋コンクリート造地上13階地下1階建 | ||
| 築年月 | 1979年3月31日 | ||
| 坪数 |
73.45坪 |
||
| 階数 | 6階 | ||
| 保証金 | - | ||
| 敷金 | - | ||
| 礼金 | - | ||
| 沿線 最寄駅 |
地下鉄御堂筋線 本町駅 徒歩2分 (本町駅の賃貸事務所) 地下鉄四つ橋線 本町駅 徒歩2分 (本町駅の賃貸事務所) 地下鉄中央線 本町駅 徒歩2分 (本町駅の賃貸事務所) |
||
| アクセス | 新大阪駅まで電車15分 大阪駅梅田駅まで電車9分 関西空港まで電車49分、車42分 伊丹空港まで車20分 高速入口:環状線信濃橋・阿波座 |
||
| EV基数 | 2基 | 人荷EV基数 | - |
| 空調タイプ | 個別 | ||
| 備考 | |||

中央大通りに面し、御堂筋線・中央線・四ツ橋線3線使用可能(各線1分)ビジネス環境は良好です。管理良好物件。最上階にはテナント向けの無償会議室もありますので、セミナーや面接などに使用することができます。コスパがいいビルですので、空き室が出てもすぐに成約となりますので、お早めにお問合せ下さい。
- お電話でお問い合わせ(無料)
-
平日13時までのお問い合わせで
当日に物件をご紹介!
お電話の場合「物件番号:A112408」
をお伝えください

