お気に入りを解除しました。
銀泉備後町
物件番号:A108317
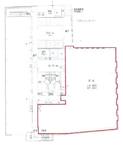
14階178.88坪
- この物件の賃料の価格帯(共益費込)
- この部屋は成約済みです
| 物件名 | 銀泉備後町 【このビルのその他の募集階】 |
||
|---|---|---|---|
| 住所 | 大阪府大阪市中央区瓦町3丁目6番5号 淀屋橋・北浜・本町・堺筋本町でよく検索されるその他の物件 |
||
| 構造(規模) | 鉄骨・鉄骨鉄筋コンクリート造地上14階地下3階建 | ||
| 築年月 | 2003年1月1日 | ||
| 坪数 |
178.88坪 |
||
| 階数 | 14階 | ||
| 保証金 | - | ||
| 敷金 | - | ||
| 礼金 | - | ||
| 沿線 最寄駅 |
地下鉄御堂筋線 本町駅 徒歩3分 (本町駅の賃貸事務所) 地下鉄中央線 本町駅 徒歩5分 (本町駅の賃貸事務所) 地下鉄御堂筋線 淀屋橋駅 徒歩7分 (淀屋橋駅の賃貸事務所) |
||
| アクセス | 新大阪駅まで電車13分 大阪駅梅田駅まで電車7分 関西空港まで電車52分、車52分 伊丹空港まで車24分 高速入口:環状線信濃橋・阿波座 |
||
| EV基数 | 6基 | 人荷EV基数 | 2基 |
| 空調タイプ | 個別 | ||
| 備考 | ・大通り沿い・角ビル ・新耐震基準適合 ・エレベーター6基(+人2基) ・天井高2.8m |
||

イチョウ並木が四季を彩る御堂筋に面すハイグレードビル。ガラス張りの新築ビルが多い中、石の重厚感を際立たせた貫禄のオフィス。貸室内は明るく、天高が2.8mありますので解放感があります。入居テナントも優良企業が多数入居しておりますので、貴社の企業イメージのアップが計れます。
- お電話でお問い合わせ(無料)
-
平日13時までのお問い合わせで
当日に物件をご紹介!
お電話の場合「物件番号:A108317」
をお伝えください
