お気に入りを解除しました。
江綿テキスタイル一棟貸
物件番号:A201336
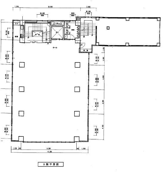
3階82.94坪
- この物件の賃料の価格帯(共益費込)
- この部屋は成約済みです
| 物件名 | 江綿テキスタイル一棟貸 【このビルのその他の募集階】 |
||
|---|---|---|---|
| 住所 | 大阪府大阪市中央区久太郎町3丁目3番14号 本町・堺筋本町でよく検索されるその他の物件 |
||
| 構造(規模) | 鉄筋コンクリート造地上5階建地下1階及び屋上塔屋付 | ||
| 築年月 | 1958年11月 | ||
| 坪数 |
82.94坪 |
||
| 階数 | 3階 | ||
| 保証金 | - | ||
| 敷金 | - | ||
| 礼金 | - | ||
| 沿線 最寄駅 |
地下鉄御堂筋線 本町駅 徒歩3分 (本町駅の賃貸事務所) |
||
| アクセス | |||
| EV基数 | 1基 | 人荷EV基数 | - |
| 空調タイプ | 個別 | ||
| 備考 | |||
- お電話でお問い合わせ(無料)
-
平日13時までのお問い合わせで
当日に物件をご紹介!
お電話の場合「物件番号:A201336」
をお伝えください
