お気に入りを解除しました。
ANAスカイコネクトなんば
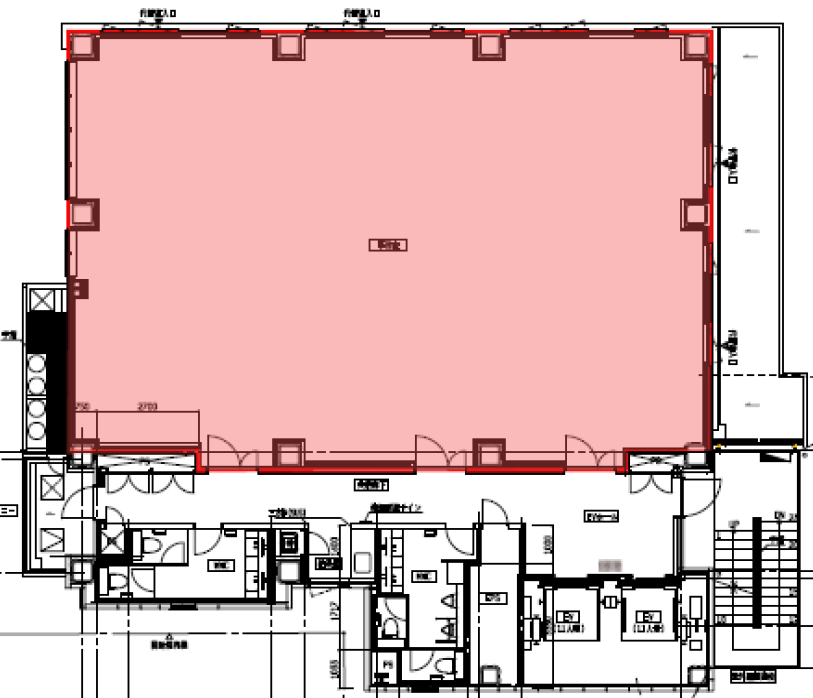
物件番号:A510016
5階59.56坪

- この物件の賃料の価格帯(共益費込)
- この部屋は成約済みです
| 物件名 | ANAスカイコネクトなんば 【このビルのその他の募集階】 |
||
|---|---|---|---|
| 住所 | 大阪府大阪市中央区難波千日前1510-11(地番) なんば・日本橋でよく検索されるその他の物件 |
||
| 構造(規模) | 鉄骨造地上9階 | ||
| 築年月 | 2025年2月(予定) | ||
| 坪数 |
59.56坪 |
||
| 階数 | 5階 | ||
| 保証金 | - | ||
| 敷金 | - | ||
| 礼金 | - | ||
| 沿線 最寄駅 |
地下鉄御堂筋線 なんば駅 徒歩6分 (なんば駅の賃貸事務所) 地下鉄千日前線 なんば駅 徒歩6分 (なんば駅の賃貸事務所) 近鉄線 大阪難波駅 徒歩6分 (大阪難波駅の賃貸事務所) |
||
| アクセス | 新大阪駅まで電車21分 大阪駅梅田駅まで電車15分 関西空港まで電車51分、車20分 伊丹空港まで車45分 高速入口:環状線湊町入口 |
||
| EV基数 | 2基 | 人荷EV基数 | - |
| 空調タイプ | 個別 | ||
| 備考 | 南海なんば駅徒歩1分 | ||
- お電話でお問い合わせ(無料)
-
平日13時までのお問い合わせで
当日に物件をご紹介!
お電話の場合「物件番号:A510016」
をお伝えください
類似物件のご紹介
(仮称)プレリー日本橋テナントPROJECT
-
-
住所 大阪府大阪市中央区日本橋1丁目5番10号 交通 地下鉄堺筋線 日本橋駅 徒歩1分
地下鉄千日前線 日本橋駅 徒歩1分
竣工 2025年12月1日 構造 鉄骨造地上11階地下1階

