お気に入りを解除しました。
UMEDA EAST CROSS
物件番号:C208041
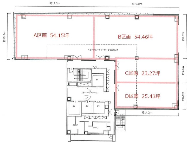
14階56.46坪

- この物件の賃料の価格帯(共益費込)
- この部屋は成約済みです
| 物件名 | UMEDA EAST CROSS 【このビルのその他の募集階】 続きを表示 ▼ |
||
|---|---|---|---|
| 住所 | 大阪府大阪市北区堂山町7番9号 梅田でよく検索されるその他の物件 |
||
| 構造(規模) | 鉄骨造地上14階塔屋1階 | ||
| 築年月 | 2025年9月 | ||
| 坪数 |
56.46坪 |
||
| 階数 | 14階 | ||
| 保証金 | - | ||
| 敷金 | - | ||
| 礼金 | - | ||
| 沿線 最寄駅 |
地下鉄御堂筋線 梅田駅 徒歩5分 (梅田駅の賃貸事務所) 地下鉄谷町線 東梅田駅 徒歩5分 (東梅田駅の賃貸事務所) JR東海道本線 大阪駅 徒歩8分 (大阪駅の賃貸事務所) |
||
| アクセス | 新大阪駅まで電車10分 大阪駅梅田駅まで電車1分 関西空港まで電車60分、車48分 伊丹空港まで車22分 高速入口:阪神高速環状線南森町・扇町入口 |
||
| EV基数 | 3基 | 人荷EV基数 | 1基 |
| 空調タイプ | 個別 | ||
| 備考 | zeb oriented取得予定(省エネ設備を設置した建築物) CASBEE大阪みらい ランクA取得(大阪市建築物総合環境評価制度) 新耐震基準の1.25倍相当の耐震基準 コンセント容量60VA/㎡ 天井高2.8m(OAフロアより) OA(100㎜) 床過重500㎏/㎡ テナント専用WEBアプリ導入予定 駐車場(平面2台・機械式20台) 駐輪場5台(ミニバイク含む) |
||

2025年9月竣工予定の新築ビル。
基準階約160坪で分割区画も最小約23坪まで対応可能の為、幅広いご要望に対応できます。
新御堂筋に面しており各線【梅田駅】【大阪駅】からのアクセスも良好。
充実した設備をはじめ、環境対策や新耐震基準の1.25倍相当の耐震基準の為
快適なオフィスライフが提供可能です。
- お電話でお問い合わせ(無料)
-
平日13時までのお問い合わせで
当日に物件をご紹介!
お電話の場合「物件番号:C208041」
をお伝えください

