お気に入りを解除しました。
アルカディーナ京町堀
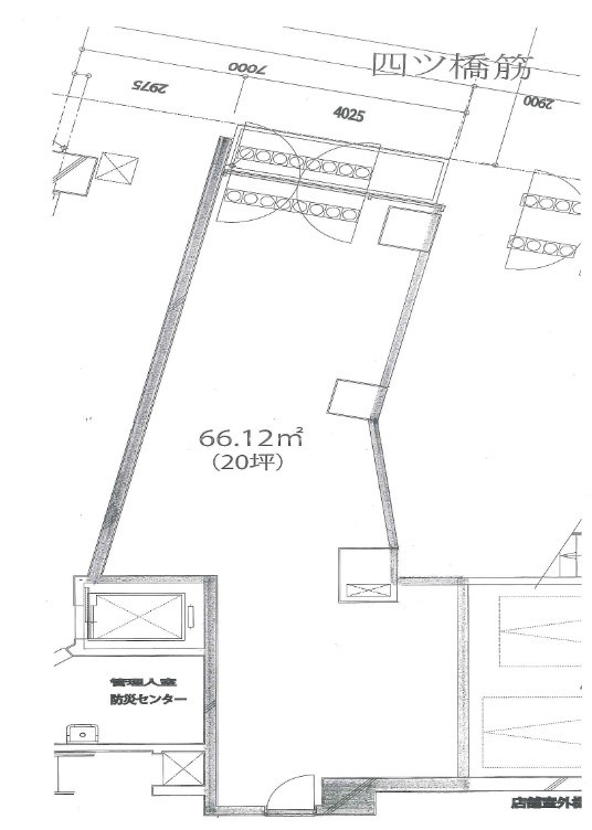
物件番号:B103128
1階20坪

- この物件の賃料の価格帯(共益費込)
- 相談
| 物件名 | アルカディーナ京町堀 【このビルのその他の募集階】 |
||
|---|---|---|---|
| 住所 | 大阪府大阪市西区京町堀1丁目7番5号 肥後橋・本町でよく検索されるその他の物件 |
||
| 構造(規模) | RC造14階建 | ||
| 築年月 | 2006年6月 | ||
| 坪数 |
20坪 |
||
| 階数 | 1階 | ||
| 保証金 | |||
| 敷金 | 相談 | ||
| 礼金 | 相談 | ||
| 沿線 最寄駅 |
地下鉄四つ橋線 肥後橋駅 徒歩6分 (肥後橋駅の賃貸事務所) 地下鉄四つ橋線 本町駅 徒歩6分 (本町駅の賃貸事務所) 地下鉄御堂筋線 本町駅 徒歩10分 (本町駅の賃貸事務所) |
||
| アクセス | 新大阪駅まで電車16分 大阪駅梅田駅まで電車10分 関西空港まで電車59分、車40分 伊丹空港まで車20分 高速入口:環状線堂島・信濃橋・阿波座入口 |
||
| EV基数 | - | 人荷EV基数 | - |
| 空調タイプ | 個別 | ||
| 備考 | |||
- お電話でお問い合わせ(無料)
-
平日13時までのお問い合わせで
当日に物件をご紹介!
お電話の場合「物件番号:B103128」
をお伝えください

