お気に入りを解除しました。
本町東栄
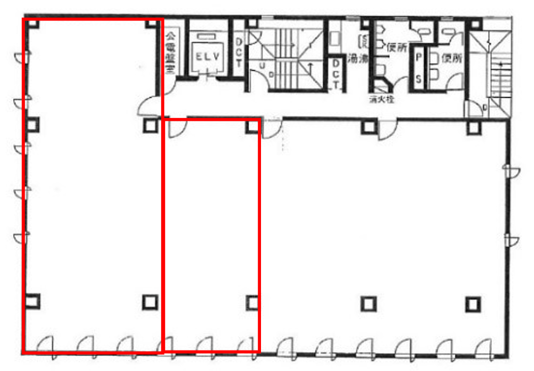
物件番号:A108421
3階41.5坪

- この物件の賃料の価格帯(共益費込)
- この部屋は成約済みです
| 物件名 | 本町東栄 【このビルのその他の募集階】 |
||
|---|---|---|---|
| 住所 | 大阪府大阪市中央区瓦町4丁目7番8号 淀屋橋・北浜・本町・堺筋本町でよく検索されるその他の物件 |
||
| 構造(規模) | 鉄骨鉄筋コンクリート造地上9階地下1階建 | ||
| 築年月 | 1984年3月 | ||
| 坪数 |
41.5坪 |
||
| 階数 | 3階 | ||
| 保証金 | - | ||
| 敷金 | - | ||
| 礼金 | - | ||
| 沿線 最寄駅 |
地下鉄御堂筋線 本町駅 徒歩4分 (本町駅の賃貸事務所) 地下鉄四つ橋線 本町駅 徒歩3分 (本町駅の賃貸事務所) 地下鉄中央線 本町駅 徒歩6分 (本町駅の賃貸事務所) |
||
| アクセス | 新大阪駅まで電車15分 大阪駅梅田駅まで電車9分 関西空港まで電車51分、車49分 伊丹空港まで車18分 高速入口:環状線信濃橋・阿波座入口 |
||
| EV基数 | 1基 | 人荷EV基数 | - |
| 空調タイプ | 個別 | ||
| 備考 | ・新耐震基準適合 | ||
全面道路の間口が広く、レンガ色のタイル張りのファサードが人目を惹くオフィスビルです。御堂筋と四ツ橋の間の落ち着いた環境です。大阪メトロ御堂筋線・中央線「本町駅」から徒歩4分程度。四ツ橋線も徒歩圏内で利用可能です。1階には歯科とHottoMottoとヤクルトが入居中。
- お電話でお問い合わせ(無料)
-
平日13時までのお問い合わせで
当日に物件をご紹介!
お電話の場合「物件番号:A108421」
をお伝えください
