お気に入りを解除しました。
ファーストハイツ駒川
物件番号:N501201
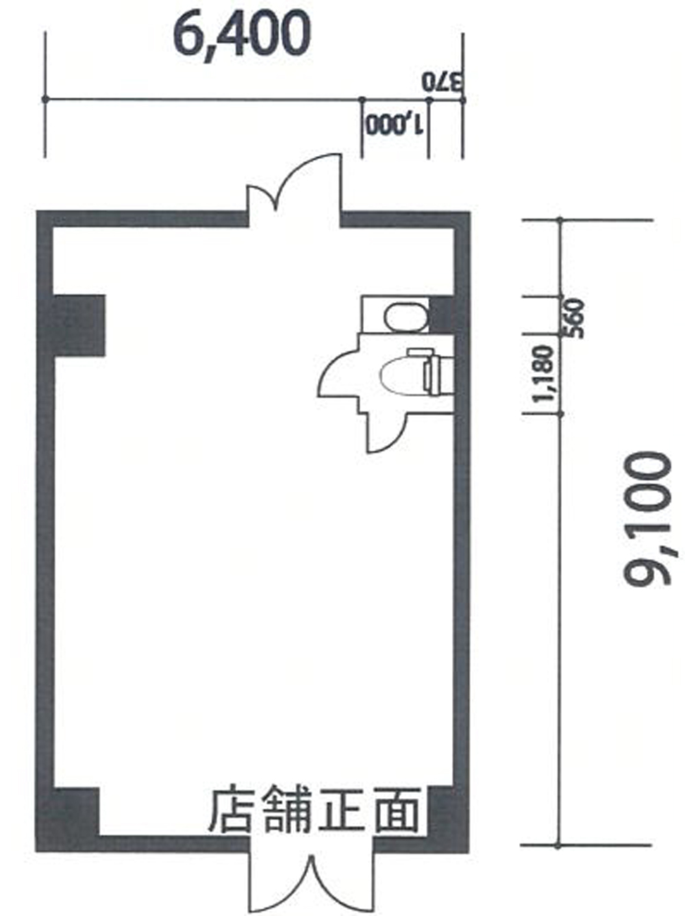
1階17.65坪

- この物件の賃料の価格帯(共益費込)
- 坪@8,001円~@12,000円
| 物件名 | ファーストハイツ駒川 【このビルのその他の募集階】 |
||
|---|---|---|---|
| 住所 | 大阪府大阪市東住吉区東田辺2丁目4番1号 でよく検索されるその他の物件 |
||
| 構造(規模) | 鉄筋コンクリート造7階建 | ||
| 築年月 | 1982年1月1日 | ||
| 坪数 |
17.65坪 |
||
| 階数 | 1階 | ||
| 保証金 | 総額500,000円 | ||
| 敷金 | - | ||
| 礼金 | 賃料の2カ月分 | ||
| 沿線 最寄駅 |
|||
| アクセス | |||
| EV基数 | 1基 | 人荷EV基数 | - |
| 空調タイプ | 個別 | ||
| 備考 | |||
- お電話でお問い合わせ(無料)
-
平日13時までのお問い合わせで
当日に物件をご紹介!
お電話の場合「物件番号:N501201」
をお伝えください

