お気に入りを解除しました。
立売堀スクエア(旧リーガル立売堀)
物件番号:B202115
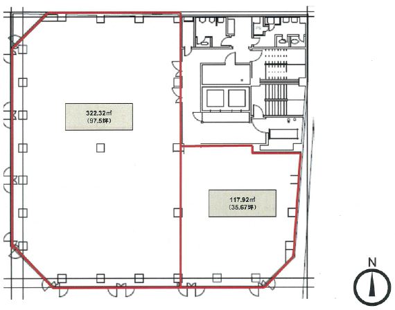
9階35.67坪
- この物件の賃料の価格帯(共益費込)
- この部屋は成約済みです
| 物件名 | 立売堀スクエア(旧リーガル立売堀) 【このビルのその他の募集階】 |
||
|---|---|---|---|
| 住所 | 大阪府大阪市西区立売堀1丁目4番12号 肥後橋・本町でよく検索されるその他の物件 |
||
| 構造(規模) | 鉄骨鉄筋コンクリート造地上9階地下1階建 | ||
| 築年月 | 1987年6月1日 | ||
| 坪数 |
35.67坪 |
||
| 階数 | 9階 | ||
| 保証金 | - | ||
| 敷金 | - | ||
| 礼金 | - | ||
| 沿線 最寄駅 |
地下鉄四つ橋線 本町駅 徒歩4分 (本町駅の賃貸事務所) 地下鉄中央線 本町駅 徒歩6分 (本町駅の賃貸事務所) 地下鉄御堂筋線 本町駅 徒歩7分 (本町駅の賃貸事務所) |
||
| アクセス | 新大阪駅まで電車17分 大阪駅梅田駅まで電車11分 関西空港まで電車56分、車45分 伊丹空港まで車20分 高速入口:環状線信濃橋・阿波座入口 |
||
| EV基数 | 2基 | 人荷EV基数 | - |
| 空調タイプ | 集中+個別 | ||
| 備考 | ・角ビル ・新耐震基準適合 ・2019年エントランス及び共用部リニューアル ・自動販売機 |
||

四ツ橋筋から西へ1本入った角地に建つビルです。ビルの南側と西側が道路に面している為、採光も見込めます。また、エントランスや共用部はモダンな内装になっています。1階エレベーター前には自動販売機もあるので便利です。
- お電話でお問い合わせ(無料)
-
平日13時までのお問い合わせで
当日に物件をご紹介!
お電話の場合「物件番号:B202115」
をお伝えください
