お気に入りを解除しました。
VORT御堂筋本町Ⅱ(旧大阪1126)
物件番号:A201331
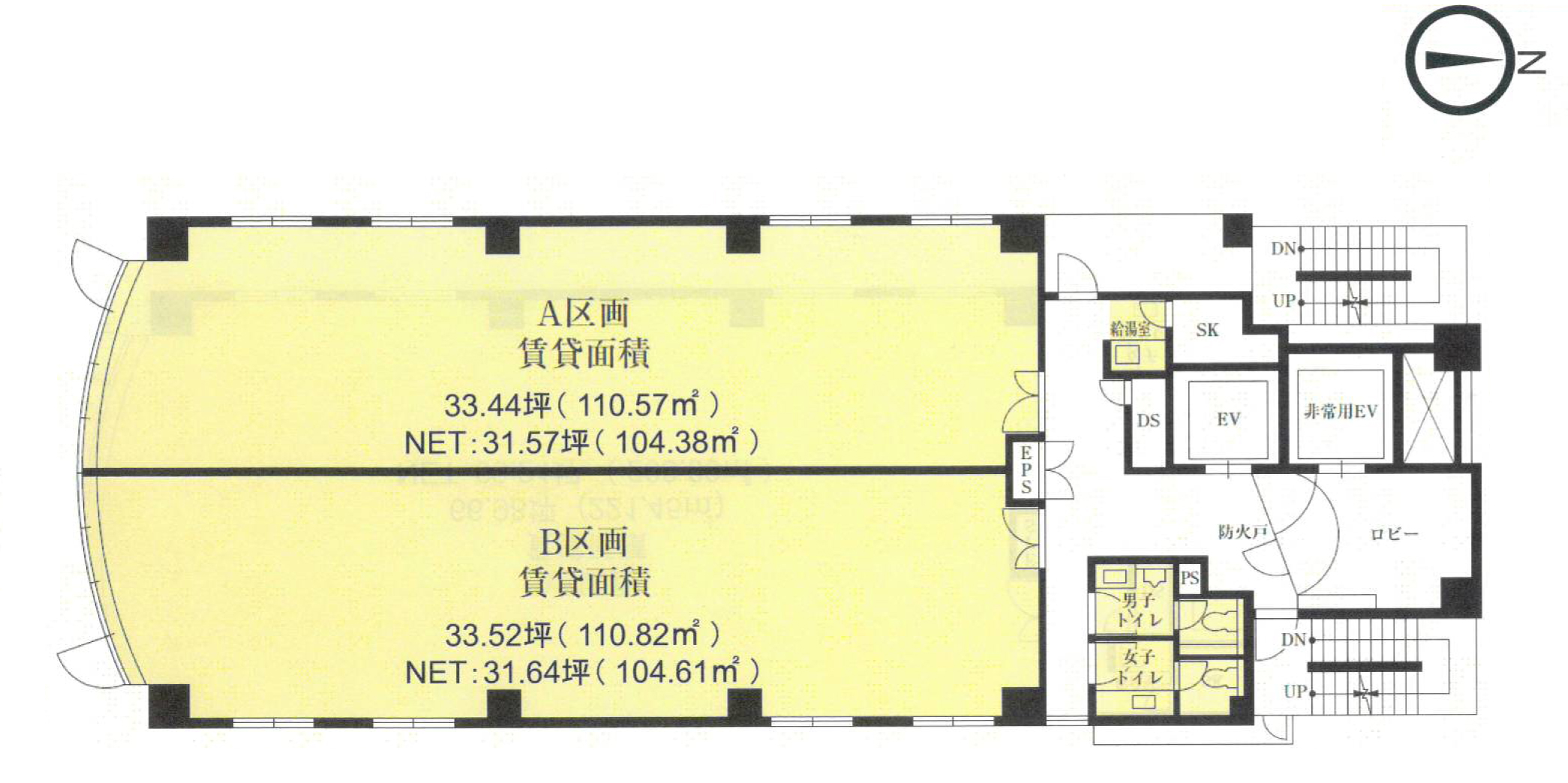
5階33.44坪

- この物件の賃料の価格帯(共益費込)
- 坪@12,001円~@15,000円
| 物件名 | VORT御堂筋本町Ⅱ(旧大阪1126) 【このビルのその他の募集階】 |
||
|---|---|---|---|
| 住所 | 大阪府大阪市中央区久太郎町3丁目1番11号 本町・堺筋本町でよく検索されるその他の物件 |
||
| 構造(規模) | 鉄骨造地上14階建地下1階 | ||
| 築年月 | 2011年4月 | ||
| 坪数 |
33.44坪 |
||
| 階数 | 5階 | ||
| 保証金 | |||
| 敷金 | 賃料の4カ月分 | ||
| 礼金 | - | ||
| 沿線 最寄駅 |
地下鉄御堂筋線 本町駅 徒歩4分 (本町駅の賃貸事務所) 地下鉄堺筋線 堺筋本町駅 徒歩5分 (堺筋本町駅の賃貸事務所) 地下鉄中央線 本町駅 徒歩4分 (本町駅の賃貸事務所) |
||
| アクセス | 新大阪駅まで電車15分 大阪駅梅田駅まで電車9分 関西空港まで電車50分、車45分 伊丹空港まで車20分 高速入口:環状線信濃橋・阿波座・長堀 入口 |
||
| EV基数 | 2基 | 人荷EV基数 | - |
| 空調タイプ | 個別 | ||
| 備考 | |||
- お電話でお問い合わせ(無料)
-
平日13時までのお問い合わせで
当日に物件をご紹介!
お電話の場合「物件番号:A201331」
をお伝えください
