お気に入りを解除しました。
第8KS(一棟貸)
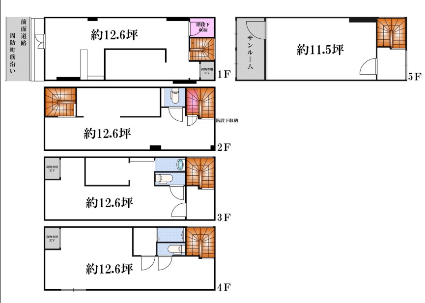
物件番号:A503140
1階~5階62坪

- この物件の賃料の価格帯(共益費込)
- 坪@8,001円~@12,000円
| 物件名 | 第8KS(一棟貸) 【このビルのその他の募集階】 |
||
|---|---|---|---|
| 住所 | 大阪府大阪市中央区東心斎橋1丁目16番9号 心斎橋・長堀橋でよく検索されるその他の物件 |
||
| 構造(規模) | 鉄骨造5階建 | ||
| 築年月 | 1978年11月 | ||
| 坪数 |
62坪 |
||
| 階数 | 1階~5階 | ||
| 保証金 | |||
| 敷金 | 賃料の1カ月分 | ||
| 礼金 | 賃料の2カ月分 | ||
| 沿線 最寄駅 |
地下鉄御堂筋線 心斎橋駅 徒歩3分 (心斎橋駅の賃貸事務所) 地下鉄長堀鶴見緑地線 心斎橋駅 徒歩3分 (心斎橋駅の賃貸事務所) 地下鉄堺筋線 長堀橋駅 徒歩3分 (長堀橋駅の賃貸事務所) |
||
| アクセス | 新大阪駅まで電車17分 大阪駅梅田駅まで電車11分 関西空港まで電車49分、車45分 伊丹空港まで車20分 高速入口:環状線長堀・四ツ橋入口 |
||
| EV基数 | - | 人荷EV基数 | - |
| 空調タイプ | 個別 | ||
| 備考 | |||
- お電話でお問い合わせ(無料)
-
平日13時までのお問い合わせで
当日に物件をご紹介!
お電話の場合「物件番号:A503140」
をお伝えください

