お気に入りを解除しました。
新大阪日大
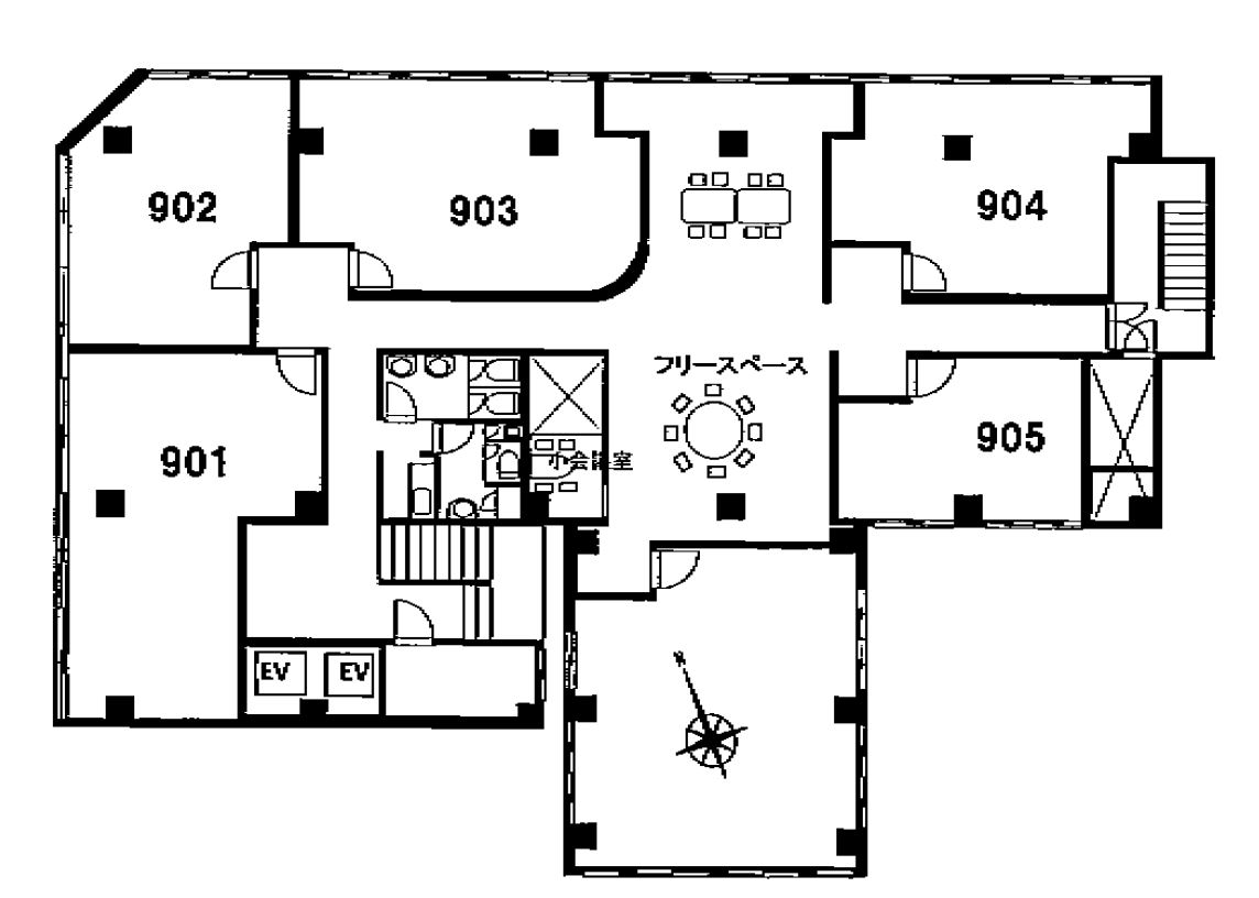
物件番号:D101334
9階15.68坪
- この物件の賃料の価格帯(共益費込)
- この部屋は成約済みです
| 物件名 | 新大阪日大 【このビルのその他の募集階】 |
||
|---|---|---|---|
| 住所 | 大阪府大阪市淀川区西中島3丁目18番9号 新大阪・西中島でよく検索されるその他の物件 |
||
| 構造(規模) | 鉄骨鉄筋コンクリート造地上10階地下1階建 | ||
| 築年月 | 1974年6月1日 | ||
| 坪数 |
15.68坪 |
||
| 階数 | 9階 | ||
| 保証金 | - | ||
| 敷金 | - | ||
| 礼金 | - | ||
| 沿線 最寄駅 |
地下鉄御堂筋線 西中島南方駅 徒歩1分 (西中島南方駅の賃貸事務所) 地下鉄御堂筋線 新大阪駅 徒歩7分 (新大阪駅の賃貸事務所) JR東海道本線 新大阪駅 徒歩7分 (新大阪駅の賃貸事務所) |
||
| アクセス | 新大阪駅まで電車4分 大阪駅梅田駅まで電車9分 関西空港まで電車64分、車50分 伊丹空港まで車20分 高速入口:11号線加島入口 |
||
| EV基数 | 2基 | 人荷EV基数 | - |
| 空調タイプ | 個別 | ||
| 備考 | 西中島南方駅正面に立地する、基準階面積約209坪の大型ビル。 規模の大きいビルながら、5坪の事務所から様々な坪数に対応可能。 |
||

新御堂沿いに面する物件で、場所柄人の行き来が多いので、1階には24時間営業のスーパーが営業中グルメシティが入居しています。上階は2019年にデザイナーズフロアに改装をしており、入居者同士の交流もできるコミュニティスペースも完備。
- お電話でお問い合わせ(無料)
-
平日13時までのお問い合わせで
当日に物件をご紹介!
お電話の場合「物件番号:D101334」
をお伝えください

