お気に入りを解除しました。
大阪山甚
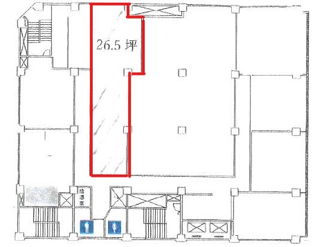
物件番号:A111106
2階26.5坪

- この物件の賃料の価格帯(共益費込)
- この部屋は成約済みです
| 物件名 | 大阪山甚 【このビルのその他の募集階】 |
||
|---|---|---|---|
| 住所 | 大阪府大阪市中央区本町1丁目5番6号 本町・堺筋本町でよく検索されるその他の物件 |
||
| 構造(規模) | 鉄骨・鉄筋コンクリート造地上9階地下2階建 | ||
| 築年月 | 1962年1月1日 | ||
| 坪数 |
26.5坪 |
||
| 階数 | 2階 | ||
| 保証金 | - | ||
| 敷金 | - | ||
| 礼金 | - | ||
| 沿線 最寄駅 |
地下鉄堺筋線 堺筋本町駅 徒歩2分 (堺筋本町駅の賃貸事務所) 地下鉄中央線 堺筋本町駅 徒歩3分 (堺筋本町駅の賃貸事務所) 地下鉄御堂筋線 本町駅 徒歩8分 (本町駅の賃貸事務所) |
||
| アクセス | 新大阪駅まで電車20分 大阪駅梅田駅まで電車14分 関西空港まで電車53分、車48分 伊丹空港まで車22分 高速入口:阪神高速環状線高麗橋・長堀橋 |
||
| EV基数 | 2基 | 人荷EV基数 | - |
| 空調タイプ | 個別 | ||
| 備考 | |||
本町通沿いに建つ大型のオフィスビルです。道路に面した1階には大手薬局チェーン入居中で説明しやすい立地です。貸室の広さも約10坪~100坪以上までバリエーション豊富にご用意が可能で、新規開業などの小規模な事務所から、数十名希望のご移転まで幅広く対応できるビルです。
- お電話でお問い合わせ(無料)
-
平日13時までのお問い合わせで
当日に物件をご紹介!
お電話の場合「物件番号:A111106」
をお伝えください
