お気に入りを解除しました。
江戸堀センター
物件番号:B102201
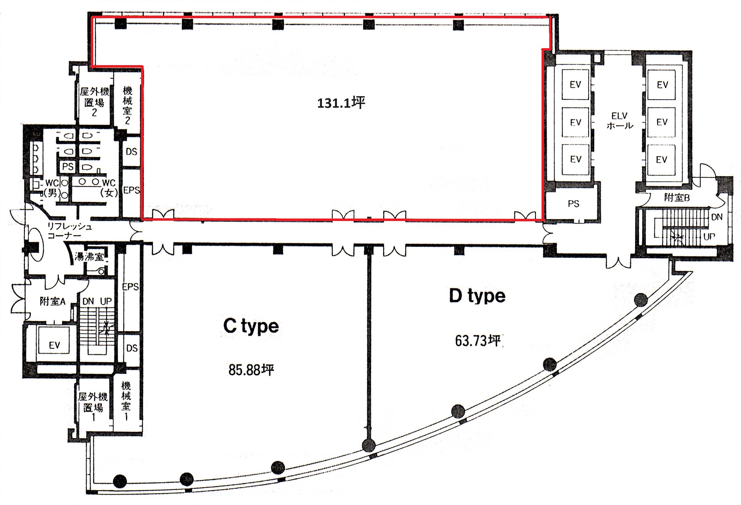
10階131.1坪

- この物件の賃料の価格帯(共益費込)
- 坪@15,001円~@20,000円
| 物件名 | 江戸堀センター 【このビルのその他の募集階】 |
||
|---|---|---|---|
| 住所 | 大阪府大阪市西区江戸堀2丁目1番1号 肥後橋・本町でよく検索されるその他の物件 |
||
| 構造(規模) | 鉄骨・鉄骨鉄筋コンクリート造地上22階地下1階建 | ||
| 築年月 | 1996年2月1日 | ||
| 坪数 |
131.1坪 |
||
| 階数 | 10階 | ||
| 保証金 | |||
| 敷金 | 賃料の12カ月分 | ||
| 礼金 | - | ||
| 沿線 最寄駅 |
地下鉄四つ橋線 肥後橋駅 徒歩7分 (肥後橋駅の賃貸事務所) 京阪線(本線・中之島線) 中之島駅 徒歩7分 (中之島駅の賃貸事務所) |
||
| アクセス | 新大阪駅まで電車22分 大阪駅梅田駅まで電車16分 関西空港まで電車62分、車40分 伊丹空港まで車20分 高速入口:環状線堂島・中之島入口 |
||
| EV基数 | 6基 | 人荷EV基数 | 1基 |
| 空調タイプ | 個別 | ||
| 備考 | |||

洗練されたガラス貼りのビル。IT、娯楽、化粧品産業などの多岐にわたる企業がオフィスを構えています。
- お電話でお問い合わせ(無料)
-
平日13時までのお問い合わせで
当日に物件をご紹介!
お電話の場合「物件番号:B102201」
をお伝えください

