お気に入りを解除しました。
プロスパー平野町
物件番号:A106303
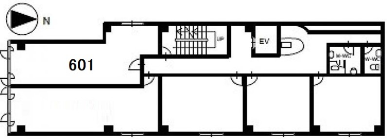
6階11.98坪

- この物件の賃料の価格帯(共益費込)
- 坪@15,001円~@20,000円
| 物件名 | プロスパー平野町 【このビルのその他の募集階】 |
||
|---|---|---|---|
| 住所 | 大阪府大阪市中央区平野町3丁目1番8号 淀屋橋・北浜・本町・堺筋本町でよく検索されるその他の物件 |
||
| 構造(規模) | 鉄骨造地上9階地下1階建 | ||
| 築年月 | 1989年10月1日 | ||
| 坪数 |
11.98坪 |
||
| 階数 | 6階 | ||
| 保証金 | 総額419,300円(@35,000円/坪) | ||
| 敷金 | - | ||
| 礼金 | - | ||
| 沿線 最寄駅 |
地下鉄御堂筋線 淀屋橋駅 徒歩4分 (淀屋橋駅の賃貸事務所) 地下鉄堺筋線 北浜駅 徒歩6分 (北浜駅の賃貸事務所) 京阪線(本線・中之島線) 北浜駅 徒歩7分 (北浜駅の賃貸事務所) |
||
| アクセス | 新大阪駅まで電車13分 大阪駅梅田駅まで電車7分 関西空港まで電車55分、車49分 伊丹空港まで車25分 高速入口:環状線高麗橋・信濃橋入口 |
||
| EV基数 | 1基 | 人荷EV基数 | - |
| 空調タイプ | 個別 | ||
| 備考 | ・新耐震基準適合・天井高2.5m ・2013年共用部リニューアル済み ・貸会議室有り・駐輪場有り |
||

コンパクトながら石張りの外観で正面玄関までは階段があるなど、非常に重厚感漂う雰囲気のビル。エントランスに無料で使えるミーティングスペースや、完全個室の有料会議室が大小一つづつ有り、貸室のレイアウトを十分有効活用ができます。
- お電話でお問い合わせ(無料)
-
平日13時までのお問い合わせで
当日に物件をご紹介!
お電話の場合「物件番号:A106303」
をお伝えください
