お気に入りを解除しました。
IENTO本町
物件番号:A111447
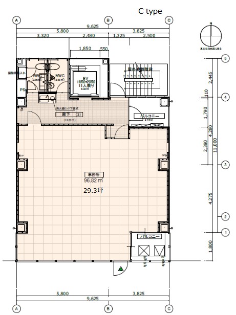
7階29.29坪

- この物件の賃料の価格帯(共益費込)
- この部屋は成約済みです
| 物件名 | IENTO本町 【このビルのその他の募集階】 |
||
|---|---|---|---|
| 住所 | 大阪府大阪市中央区本町4丁目4番10号 本町・堺筋本町・肥後橋・本町でよく検索されるその他の物件 |
||
| 構造(規模) | 鉄骨造地上12階建 | ||
| 築年月 | 2023年10月予定 | ||
| 坪数 |
29.29坪 |
||
| 階数 | 7階 | ||
| 保証金 | - | ||
| 敷金 | - | ||
| 礼金 | - | ||
| 沿線 最寄駅 |
地下鉄御堂筋線 本町駅 徒歩2分 (本町駅の賃貸事務所) 地下鉄中央線 本町駅 徒歩2分 (本町駅の賃貸事務所) 地下鉄四つ橋線 本町駅 徒歩4分 (本町駅の賃貸事務所) |
||
| アクセス | 新大阪駅まで電車11分 大阪駅梅田駅まで電車7分 関西空港まで電車48分、車46分 伊丹空港まで車27分 高速入口:阪神高速環状線信濃橋入口 |
||
| EV基数 | 1基 | 人荷EV基数 | - |
| 空調タイプ | 個別 | ||
| 備考 | |||
- お電話でお問い合わせ(無料)
-
平日13時までのお問い合わせで
当日に物件をご紹介!
お電話の場合「物件番号:A111447」
をお伝えください

