お気に入りを解除しました。
AXIS本町橋YK
物件番号:A319003
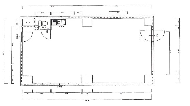
1階20坪

- この物件の賃料の価格帯(共益費込)
- この部屋は成約済みです
| 物件名 | AXIS本町橋YK 【このビルのその他の募集階】 |
||
|---|---|---|---|
| 住所 | 大阪府大阪市中央区本町橋2番16号 本町・堺筋本町・天満橋・谷町でよく検索されるその他の物件 |
||
| 構造(規模) | 鉄骨造地上10階建 | ||
| 築年月 | 1992年3月31日 | ||
| 坪数 |
20坪 |
||
| 階数 | 1階 | ||
| 保証金 | - | ||
| 敷金 | - | ||
| 礼金 | - | ||
| 沿線 最寄駅 |
地下鉄堺筋線 堺筋本町駅 徒歩5分 (堺筋本町駅の賃貸事務所) 地下鉄中央線 堺筋本町駅 徒歩6分 (堺筋本町駅の賃貸事務所) 地下鉄谷町線 谷町四丁目駅 徒歩6分 (谷町四丁目駅の賃貸事務所) |
||
| アクセス | 新大阪駅まで電車19分 大阪駅梅田駅まで電車13分 関西空港まで電車58分、車45分 伊丹空港まで車20分 高速入口:環状線高麗橋・法円坂入口 |
||
| EV基数 | 2基 | 人荷EV基数 | - |
| 空調タイプ | 個別 | ||
| 備考 | |||
- お電話でお問い合わせ(無料)
-
平日13時までのお問い合わせで
当日に物件をご紹介!
お電話の場合「物件番号:A319003」
をお伝えください
