お気に入りを解除しました。
ディライト北浜
物件番号:A1051221
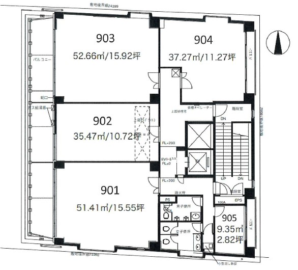
9階15.93坪

- この物件の賃料の価格帯(共益費込)
- この部屋は成約済みです
| 物件名 | ディライト北浜 【このビルのその他の募集階】 |
||
|---|---|---|---|
| 住所 | 大阪府大阪市中央区道修町1丁目3番1号 淀屋橋・北浜・本町・堺筋本町でよく検索されるその他の物件 |
||
| 構造(規模) | 鉄骨鉄筋コンクリート・鉄筋コンクリート造陸屋根9階建 | ||
| 築年月 | 1990年8月 | ||
| 坪数 |
15.93坪 |
||
| 階数 | 9階 | ||
| 保証金 | - | ||
| 敷金 | - | ||
| 礼金 | - | ||
| 沿線 最寄駅 |
地下鉄堺筋線 北浜駅 徒歩4分 (北浜駅の賃貸事務所) 京阪線(本線・中之島線) 北浜駅 徒歩4分 (北浜駅の賃貸事務所) |
||
| アクセス | |||
| EV基数 | 2基 | 人荷EV基数 | - |
| 空調タイプ | 個別 | ||
| 備考 | |||
- お電話でお問い合わせ(無料)
-
平日13時までのお問い合わせで
当日に物件をご紹介!
お電話の場合「物件番号:A1051221」
をお伝えください

