お気に入りを解除しました。
堂島グランド
物件番号:C303110
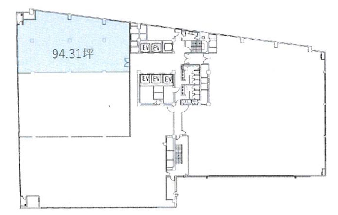
7階94.31坪
- この物件の賃料の価格帯(共益費込)
- この部屋は成約済みです
| 物件名 | 堂島グランド 【このビルのその他の募集階】 |
||
|---|---|---|---|
| 住所 | 大阪府大阪市北区堂島1丁目5番17号 梅田・西梅田・堂島・福島でよく検索されるその他の物件 |
||
| 構造(規模) | 鉄骨鉄筋コンクリート造地上9階地下1階建 新耐震基準 | ||
| 築年月 | 1979年6月1日 | ||
| 坪数 |
94.31坪 |
||
| 階数 | 7階 | ||
| 保証金 | - | ||
| 敷金 | - | ||
| 礼金 | - | ||
| 沿線 最寄駅 |
地下鉄四つ橋線 西梅田駅 徒歩4分 (西梅田駅の賃貸事務所) JR大阪環状線 大阪駅 徒歩7分 (大阪駅の賃貸事務所) JR東西線 北新地駅 徒歩3分 (北新地駅の賃貸事務所) |
||
| アクセス | 新大阪駅まで電車13分 大阪駅梅田駅まで電車7分 関西空港まで電車59分、車45分 伊丹空港まで車20分 高速入口:環状線堂島・梅田入口 |
||
| EV基数 | 6基 | 人荷EV基数 | 1基 |
| 空調タイプ | 集中+個別 | ||
| 備考 | |||

大阪メトロ四つ橋線「西梅田駅」徒歩4分の立地に位置する基準階面積約650坪の大型ビル。四ツ橋筋に面しビジネス環境は良好です。堂島地下街に直結し交通アクセスも便利。耐震補強工事完了済み、各貸室に非常用コンセントが一つ設置済みです。
- お電話でお問い合わせ(無料)
-
平日13時までのお問い合わせで
当日に物件をご紹介!
お電話の場合「物件番号:C303110」
をお伝えください

