お気に入りを解除しました。
ACN堺筋本町
物件番号:A112109
3階23.38坪
- この物件の賃料の価格帯(共益費込)
- この部屋は成約済みです
| 物件名 | ACN堺筋本町 【このビルのその他の募集階】 |
||
|---|---|---|---|
| 住所 | 大阪府大阪市中央区南本町1丁目5番7号 本町・堺筋本町でよく検索されるその他の物件 |
||
| 構造(規模) | 鉄骨造地上10階建 | ||
| 築年月 | 2023年6月 | ||
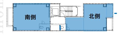
| 坪数 |
23.38坪 |
||
| 階数 | 3階 | ||
| 保証金 | - | ||
| 敷金 | - | ||
| 礼金 | - | ||
| 沿線 最寄駅 |
地下鉄堺筋線 堺筋本町駅 徒歩1分 (堺筋本町駅の賃貸事務所) 地下鉄中央線 堺筋本町駅 徒歩1分 (堺筋本町駅の賃貸事務所) 地下鉄御堂筋線 本町駅 徒歩7分 (本町駅の賃貸事務所) |
||
| アクセス | 新大阪駅まで電車19分 大阪駅梅田駅まで電車13分 関西空港まで電車50分、車45分 伊丹空港まで車22分 高速入口:環状線信濃橋・阿波座入口 |
||
| EV基数 | 1基 | 人荷EV基数 | - |
| 空調タイプ | 個別 | ||
| 備考 | ・ワンフロアーワンテナント ・空中店舗相談可 |
||

ONE O ONE南本町は、大阪メトロ堺筋線・中央線「堺筋本町駅」徒歩1分に位置する駅近の好立地ビルです。
ワンフロアーワンテナントで使い勝手がいい新築ビル。
空中店舗も相談可能ですので、業種についてはお問合せください。
- お電話でお問い合わせ(無料)
-
平日13時までのお問い合わせで
当日に物件をご紹介!
お電話の場合「物件番号:A112109」
をお伝えください
類似物件のご紹介
M.BALANSE⁺ OSAKA TANIMACHI(旧RE-LAB大阪中央)
-
-
住所 大阪府大阪市中央区鎗屋町2丁目2番9号 交通 地下鉄谷町線 谷町四丁目駅 徒歩4分
地下鉄中央線 谷町四丁目駅 徒歩4分
地下鉄堺筋線 堺筋本町駅 徒歩8分
竣工 1990年4月1日 構造 鉄筋コンクリート造地上8階

