お気に入りを解除しました。
毎日新聞
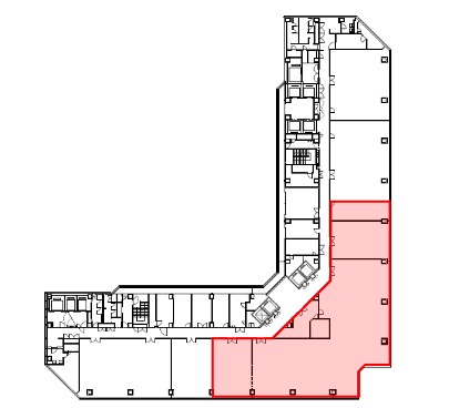
物件番号:C301306
6階189.22坪

- この物件の賃料の価格帯(共益費込)
- この部屋は成約済みです
| 物件名 | 毎日新聞 【このビルのその他の募集階】 |
||
|---|---|---|---|
| 住所 | 大阪府大阪市北区梅田3丁目4番5号 西梅田・堂島・福島でよく検索されるその他の物件 |
||
| 構造(規模) | 鉄骨鉄筋コンクリート造地上16階地下2階建 | ||
| 築年月 | 1992年11月1日 | ||
| 坪数 |
189.22坪 |
||
| 階数 | 6階 | ||
| 保証金 | - | ||
| 敷金 | - | ||
| 礼金 | - | ||
| 沿線 最寄駅 |
地下鉄四つ橋線 西梅田駅 徒歩5分 (西梅田駅の賃貸事務所) JR東西線 北新地駅 徒歩5分 (北新地駅の賃貸事務所) JR大阪環状線 福島駅 徒歩5分 (福島駅の賃貸事務所) |
||
| アクセス | 新大阪駅まで電車14分 大阪駅梅田駅まで電車8分 関西空港まで電車62分、車45分 伊丹空港まで車20分 高速入口:環状線梅田・堂島入口 |
||
| EV基数 | 6基 | 人荷EV基数 | 1基 |
| 空調タイプ | 集中 | ||
| 備考 | |||

「文化、国際、情報化の拠点」である大阪・西梅田地区開発のトップを切って誕生したインテリジェントビル。毎日新聞大阪本社が入っていることから、選抜高校野球の選考会・組み合わせ抽選会を同ビルのホールで行うことも。地上16階建て、ワンフロア450坪を超える大型ビルで、企業イメージのアップにもつながります。
- お電話でお問い合わせ(無料)
-
平日13時までのお問い合わせで
当日に物件をご紹介!
お電話の場合「物件番号:C301306」
をお伝えください
