お気に入りを解除しました。
お初天神EAST BLDG
物件番号:C206233
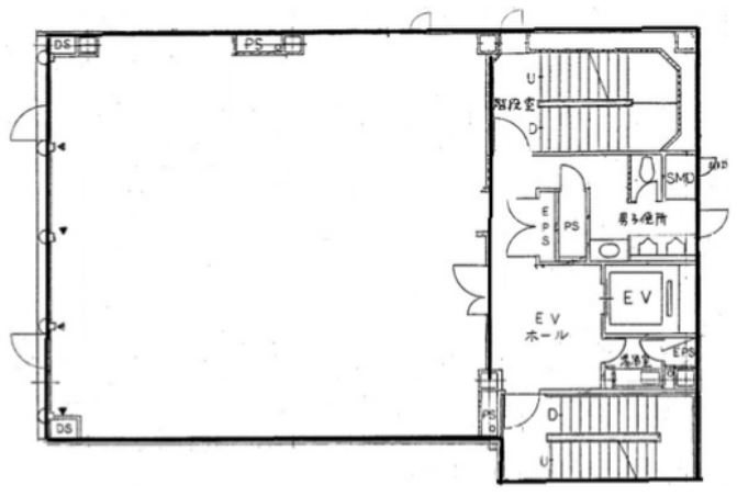
2階46.76坪
- この物件の賃料の価格帯(共益費込)
- この部屋は成約済みです
| 物件名 | お初天神EAST BLDG 【このビルのその他の募集階】 |
||
|---|---|---|---|
| 住所 | 大阪府大阪市北区曽根崎2丁目8番5号 梅田でよく検索されるその他の物件 |
||
| 構造(規模) | 鉄筋コンクリート造地上8階地下1階建 | ||
| 築年月 | 1993年1月 | ||
| 坪数 |
46.76坪 |
||
| 階数 | 2階 | ||
| 保証金 | - | ||
| 敷金 | - | ||
| 礼金 | - | ||
| 沿線 最寄駅 |
地下鉄谷町線 東梅田駅 徒歩3分 (東梅田駅の賃貸事務所) 地下鉄御堂筋線 梅田駅 徒歩7分 (梅田駅の賃貸事務所) JR大阪環状線 大阪駅 徒歩5分 (大阪駅の賃貸事務所) |
||
| アクセス | 新大阪駅まで電車14分 関西空港まで電車64分、車45分 伊丹空港まで車19分 高速入口:阪神高速12号守口線 |
||
| EV基数 | 1基 | 人荷EV基数 | - |
| 空調タイプ | 個別 | ||
| 備考 | |||

大阪メトロ谷町線「東梅田」駅から徒歩3分の位置にある好立地物件です。東梅田駅含め6線路6駅徒歩圏内で利用可能になります。1993年竣工で新耐震基準のオフィスビルで24時間利用可能。機械警備のセキュリティにて安心して入居いただけます。事務所での使用はもちろん、美容院・サロン・クリニックでもご利用いただけます。2020年7月にリニューアル済みで清潔感のあるビルです。
- お電話でお問い合わせ(無料)
-
平日13時までのお問い合わせで
当日に物件をご紹介!
お電話の場合「物件番号:C206233」
をお伝えください

