お気に入りを解除しました。
川久センター
物件番号:D101203
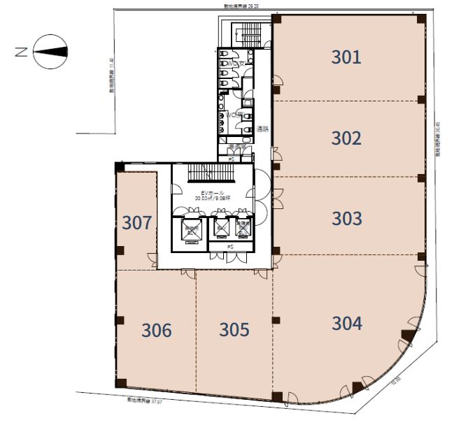
3階201.55坪
- この物件の賃料の価格帯(共益費込)
- この部屋は成約済みです
| 物件名 | 川久センター 【このビルのその他の募集階】 |
||
|---|---|---|---|
| 住所 | 大阪府大阪市淀川区西中島2丁目12番11号 新大阪・西中島でよく検索されるその他の物件 |
||
| 構造(規模) | 鉄骨造地上8階 | ||
| 築年月 | 1996年1月1日 | ||
| 坪数 |
201.55坪 |
||
| 階数 | 3階 | ||
| 保証金 | - | ||
| 敷金 | - | ||
| 礼金 | - | ||
| 沿線 最寄駅 |
地下鉄御堂筋線 西中島南方駅 徒歩4分 (西中島南方駅の賃貸事務所) 地下鉄御堂筋線 新大阪駅 徒歩14分 (新大阪駅の賃貸事務所) JR東海道本線 新大阪駅 徒歩16分 (新大阪駅の賃貸事務所) |
||
| アクセス | 新大阪駅まで電車14分 大阪駅梅田駅まで電車12分 関西空港まで電車60分、車53分 伊丹空港まで車24分 高速入口:阪神高速道路空港線塚口入口 |
||
| EV基数 | 2基 | 人荷EV基数 | 1基 |
| 空調タイプ | 個別 | ||
| 備考 | |||
- お電話でお問い合わせ(無料)
-
平日13時までのお問い合わせで
当日に物件をご紹介!
お電話の場合「物件番号:D101203」
をお伝えください

