お気に入りを解除しました。
川口
物件番号:B301201
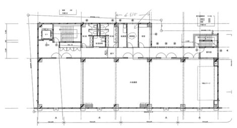
4階125.84坪
- この物件の賃料の価格帯(共益費込)
- この部屋は成約済みです
| 物件名 | 川口 【このビルのその他の募集階】 |
||
|---|---|---|---|
| 住所 | 大阪府大阪市西区川口2丁目4番2号 阿波座でよく検索されるその他の物件 |
||
| 構造(規模) | 鉄筋コンクリート造地上4階建 | ||
| 築年月 | 2016年2月 | ||
| 坪数 |
125.84坪 |
||
| 階数 | 4階 | ||
| 保証金 | - | ||
| 敷金 | - | ||
| 礼金 | - | ||
| 沿線 最寄駅 |
地下鉄中央線 阿波座駅 徒歩7分 (阿波座駅の賃貸事務所) 地下鉄千日前線 玉川駅 徒歩10分 (玉川駅の賃貸事務所) JR大阪環状線 野田駅 徒歩15分 (野田駅の賃貸事務所) |
||
| アクセス | 新大阪駅まで電車26分 大阪駅梅田駅まで電車21分 関西空港まで電車70分、車37分 伊丹空港まで車23分 高速入口:阪神高速3号神戸線線中之島西 |
||
| EV基数 | 1基 | 人荷EV基数 | - |
| 空調タイプ | 個別 | ||
| 備考 | |||

スタジオ、介護関係、塾など多様な使い方が可能。多目的ホールは3部屋に分割可能。舞台装置などもあり。
住居タイプのお部屋が2部屋あり、共用の浴室やサウナも利用可能。喫煙ルームあり。
- お電話でお問い合わせ(無料)
-
平日13時までのお問い合わせで
当日に物件をご紹介!
お電話の場合「物件番号:B301201」
をお伝えください
