お気に入りを解除しました。
アセンズ新大阪
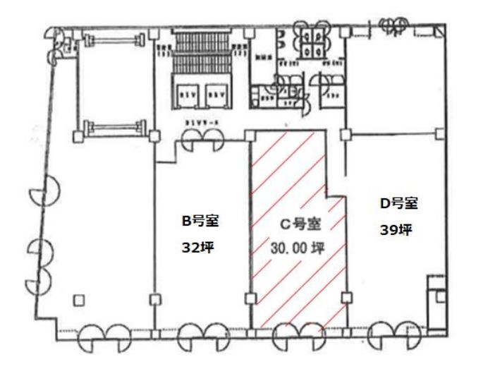
物件番号:D101602
5階30坪
- この物件の賃料の価格帯(共益費込)
- この部屋は成約済みです
| 物件名 | アセンズ新大阪 【このビルのその他の募集階】 |
||
|---|---|---|---|
| 住所 | 大阪府大阪市淀川区西中島6丁目1番15号 新大阪・西中島でよく検索されるその他の物件 |
||
| 構造(規模) | 鉄骨造地上9階建 | ||
| 築年月 | 1986年11月30日 | ||
| 坪数 |
30坪 |
||
| 階数 | 5階 | ||
| 保証金 | - | ||
| 敷金 | - | ||
| 礼金 | - | ||
| 沿線 最寄駅 |
地下鉄御堂筋線 西中島南方駅 徒歩2分 (西中島南方駅の賃貸事務所) 地下鉄御堂筋線 新大阪駅 徒歩4分 (新大阪駅の賃貸事務所) JR東海道本線 新大阪駅 徒歩5分 (新大阪駅の賃貸事務所) |
||
| アクセス | 新大阪駅まで電車3分 大阪駅梅田駅まで電車6分 関西空港まで電車62分、車50分 伊丹空港まで車20分 高速入口:11号線加島入口 |
||
| EV基数 | 2基 | 人荷EV基数 | - |
| 空調タイプ | 個別 | ||
| 備考 | |||

新御堂から1本入った立地にあるオフィスビルで、石貼りの外観とエントランスが重厚感を演出しています。もちろん管理も行き届いており貸会議室や喫煙室も完備。10坪台~100坪台まで幅広いニーズに対応できる貸室です。
- お電話でお問い合わせ(無料)
-
平日13時までのお問い合わせで
当日に物件をご紹介!
お電話の場合「物件番号:D101602」
をお伝えください
