お気に入りを解除しました。
京橋大発
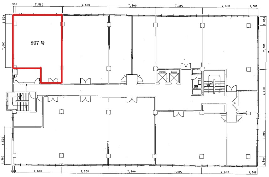
物件番号:J101201
8階28坪

- この物件の賃料の価格帯(共益費込)
- この部屋は成約済みです
| 物件名 | 京橋大発 【このビルのその他の募集階】 |
||
|---|---|---|---|
| 住所 | 大阪府大阪市都島区片町2丁目2番40号 OBP・京橋・ 森之宮でよく検索されるその他の物件 |
||
| 構造(規模) | 鉄骨鉄筋コンクリート造地上9階建 | ||
| 築年月 | 1972年1月1日 | ||
| 坪数 |
28坪 |
||
| 階数 | 8階 | ||
| 保証金 | - | ||
| 敷金 | - | ||
| 礼金 | - | ||
| 沿線 最寄駅 |
JR大阪環状線 京橋駅 徒歩1分 (京橋駅の賃貸事務所) 京阪線(本線・中之島線) 京橋駅 徒歩1分 (京橋駅の賃貸事務所) 地下鉄長堀鶴見緑地線 京橋駅 徒歩1分 (京橋駅の賃貸事務所) |
||
| アクセス | 新大阪駅まで電車17分 大阪駅梅田駅まで電車10分 関西空港まで電車56分、車50分 伊丹空港まで車22分 高速入口:法円坂・高麗橋入口 |
||
| EV基数 | 2基 | 人荷EV基数 | - |
| 空調タイプ | 個別 | ||
| 備考 | |||
- お電話でお問い合わせ(無料)
-
平日13時までのお問い合わせで
当日に物件をご紹介!
お電話の場合「物件番号:J101201」
をお伝えください
類似物件のご紹介
都島本通3丁目店舗・事務所(1棟貸)
-
-
住所 大阪府大阪市都島区都島本通3丁目22番15号 交通 地下鉄谷町線 都島駅 徒歩2分
JR大阪環状線 桜ノ宮駅 徒歩11分
竣工 構造 木造2階建

