お気に入りを解除しました。
西九条駅前店舗
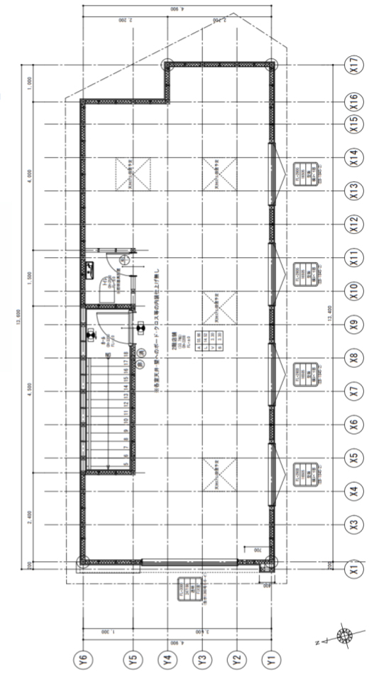
物件番号:K302101
2階20.14坪

- この物件の賃料の価格帯(共益費込)
- この部屋は成約済みです
| 物件名 | 西九条駅前店舗 【このビルのその他の募集階】 |
||
|---|---|---|---|
| 住所 | 大阪府大阪市此花区西九条1丁目33番16号 阿波座でよく検索されるその他の物件 |
||
| 構造(規模) | 木造2階建 | ||
| 築年月 | 2023年3月1日 | ||
| 坪数 |
20.14坪 |
||
| 階数 | 2階 | ||
| 保証金 | - | ||
| 敷金 | - | ||
| 礼金 | - | ||
| 沿線 最寄駅 |
JR大阪環状線 西九条駅 徒歩1分 (西九条駅の賃貸事務所) |
||
| アクセス | |||
| EV基数 | - | 人荷EV基数 | - |
| 空調タイプ | 個別 | ||
| 備考 | |||
- お電話でお問い合わせ(無料)
-
平日13時までのお問い合わせで
当日に物件をご紹介!
お電話の場合「物件番号:K302101」
をお伝えください
