お気に入りを解除しました。
松尾
物件番号:B203321
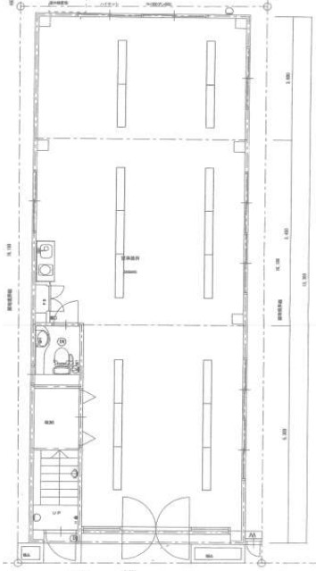
1階23.77坪

- この物件の賃料の価格帯(共益費込)
- この部屋は成約済みです
| 物件名 | 松尾 【このビルのその他の募集階】 |
||
|---|---|---|---|
| 住所 | 大阪府大阪市西区新町3丁目11番2号 四ツ橋・阿波座でよく検索されるその他の物件 |
||
| 構造(規模) | 鉄骨造地上3階建 | ||
| 築年月 | 2002年1月 | ||
| 坪数 |
23.77坪 |
||
| 階数 | 1階 | ||
| 保証金 | - | ||
| 敷金 | - | ||
| 礼金 | - | ||
| 沿線 最寄駅 |
地下鉄千日前線 西長堀駅 徒歩4分 (西長堀駅の賃貸事務所) 地下鉄長堀鶴見緑地線 西大橋駅 徒歩4分 (西大橋駅の賃貸事務所) 地下鉄中央線 阿波座駅 徒歩5分 (阿波座駅の賃貸事務所) |
||
| アクセス | 新大阪駅まで電車21分 大阪駅梅田駅まで電車16分 関西空港まで電車54分、車40分 伊丹空港まで車20分 高速入口:環状線阿波座・四ツ橋・西長堀入口 |
||
| EV基数 | - | 人荷EV基数 | - |
| 空調タイプ | |||
| 備考 | |||
- お電話でお問い合わせ(無料)
-
平日13時までのお問い合わせで
当日に物件をご紹介!
お電話の場合「物件番号:B203321」
をお伝えください

