お気に入りを解除しました。
天満(1棟貸)
物件番号:C112250
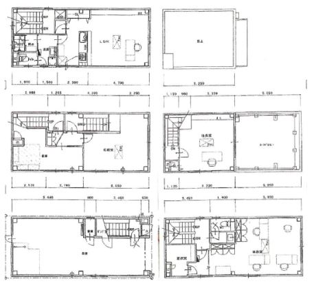
1階~5階64.18坪
- この物件の賃料の価格帯(共益費込)
- 坪@3,000円~@8,000円
| 物件名 | 天満(1棟貸) 【このビルのその他の募集階】 |
||
|---|---|---|---|
| 住所 | 大阪府大阪市北区天満2丁目12番3号 南森町でよく検索されるその他の物件 |
||
| 構造(規模) | 鉄骨造地上5階建 | ||
| 築年月 | 1986年11月 | ||
| 坪数 |
64.18坪 |
||
| 階数 | 1階~5階 | ||
| 保証金 | |||
| 敷金 | 賃料の2カ月分 | ||
| 礼金 | 賃料の1カ月分 | ||
| 沿線 最寄駅 |
JR東西線 大阪天満宮駅 徒歩7分 (大阪天満宮駅の賃貸事務所) 地下鉄谷町線 天満橋駅 徒歩8分 (天満橋駅の賃貸事務所) 京阪線(本線・中之島線) 天満橋駅 徒歩8分 (天満橋駅の賃貸事務所) |
||
| アクセス | 新大阪駅まで電車23分 大阪駅梅田駅まで電車16分 関西空港まで電車53分、車45分 伊丹空港まで車20分 高速入口:阪神高速環状線南森町・高麗橋入口 |
||
| EV基数 | - | 人荷EV基数 | - |
| 空調タイプ | |||
| 備考 | ・5階建一棟貸 ・メガバンク、郵便局徒歩圏内 ・エアコン、キッチン、シャワー室完備 ・防犯カメラ、セキュリティ完備 |
||

大阪メトロ南森町駅・天満橋駅やJR東西線大阪天満宮駅が徒歩圏内にあり、フットワークの良いアクセス環境です。天満橋筋からも確認できるので視認性も良い物件です。
- お電話でお問い合わせ(無料)
-
平日13時までのお問い合わせで
当日に物件をご紹介!
お電話の場合「物件番号:C112250」
をお伝えください
