お気に入りを解除しました。
タカヤマ(1棟貸)
物件番号:D204407
1階~4階220坪
- この物件の賃料の価格帯(共益費込)
- 相談
| 物件名 | タカヤマ(1棟貸) 【このビルのその他の募集階】 |
||
|---|---|---|---|
| 住所 | 大阪府大阪市淀川区東三国4丁目14番26号 新大阪・西中島でよく検索されるその他の物件 |
||
| 構造(規模) | 鉄骨造地上4階建 | ||
| 築年月 | 1994年8月 | ||
| 坪数 |
220坪 |
||
| 階数 | 1階~4階 | ||
| 保証金 | |||
| 敷金 | - | ||
| 礼金 | - | ||
| 沿線 最寄駅 |
地下鉄御堂筋線 東三国駅 徒歩3分 (東三国駅の賃貸事務所) 地下鉄御堂筋線 新大阪駅 徒歩11分 (新大阪駅の賃貸事務所) JR東海道本線 新大阪駅 徒歩11分 (新大阪駅の賃貸事務所) |
||
| アクセス | 新大阪駅まで電車5分 大阪駅梅田駅まで電車10分 関西空港まで電車66分、車50分 伊丹空港まで車20分 高速入口:11号線加島入口 |
||
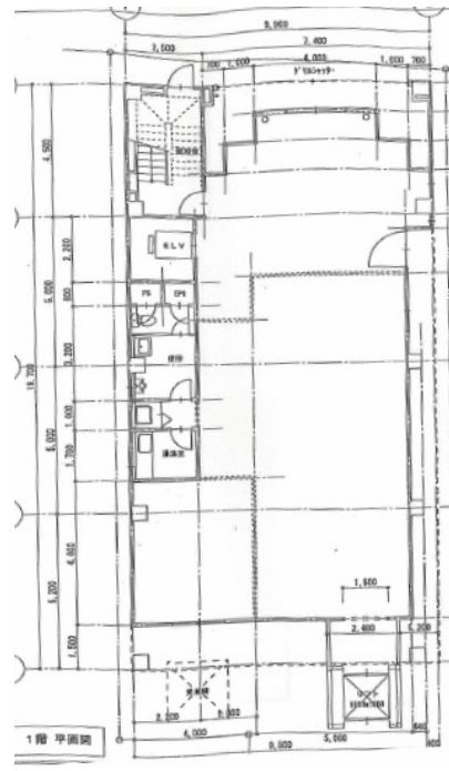
| EV基数 | 1基 | 人荷EV基数 | 1基 |
| 空調タイプ | |||
| 備考 | ・駅地下 ・飲食店可 ・エレベーター、貨物用リフトあり ・屋上階に訳38坪の休憩フロアがあります |
||

自社ビル・飲食店舗・倉庫にも利用可能な1棟貸テナントです。大阪メトロ御堂筋線「東三国駅」から徒歩3分の好立地。エレベーターが2台(人荷用+荷物用)あり、北・南と2面道路に接道しているため搬入出に優れた物件になっています。屋上階のリフレッシュフロア(約38坪)も利用可能です。
- お電話でお問い合わせ(無料)
-
平日13時までのお問い合わせで
当日に物件をご紹介!
お電話の場合「物件番号:D204407」
をお伝えください

