お気に入りを解除しました。
GAZELLE RIO.6 EAST
物件番号:C405607
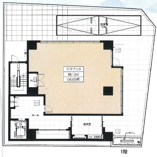
1階26.65坪

- この物件の賃料の価格帯(共益費込)
- この部屋は成約済みです
| 物件名 | GAZELLE RIO.6 EAST 【このビルのその他の募集階】 |
||
|---|---|---|---|
| 住所 | 大阪府大阪市北区天神橋6丁目5番24号 南森町でよく検索されるその他の物件 |
||
| 構造(規模) | 鉄筋コンクリート造地上9階建 | ||
| 築年月 | 2023年3月 | ||
| 坪数 |
26.65坪 |
||
| 階数 | 1階 | ||
| 保証金 | - | ||
| 敷金 | - | ||
| 礼金 | - | ||
| 沿線 最寄駅 |
地下鉄谷町線 天神橋筋六丁目駅 徒歩2分 (天神橋筋六丁目駅の賃貸事務所) 地下鉄堺筋線 天神橋筋六丁目駅 徒歩2分 (天神橋筋六丁目駅の賃貸事務所) |
||
| アクセス | 新大阪駅まで電車9分 大阪駅梅田駅まで電車19分 関西空港まで電車60分、車44分 伊丹空港まで車19分 高速入口:阪神高速道路扇町・長柄出入口 |
||
| EV基数 | 1基 | 人荷EV基数 | - |
| 空調タイプ | 個別 | ||
| 備考 | 屋上庭園があります。 | ||

空中店舗可能です。
- お電話でお問い合わせ(無料)
-
平日13時までのお問い合わせで
当日に物件をご紹介!
お電話の場合「物件番号:C405607」
をお伝えください

