お気に入りを解除しました。
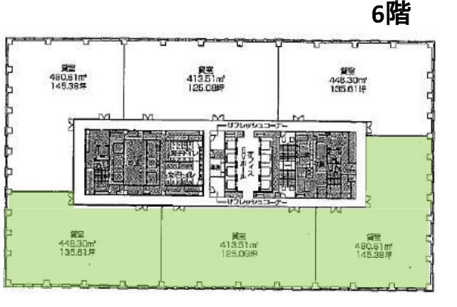
マルイトOBPタワー
物件番号:A321204
6階406.07坪
- この物件の賃料の価格帯(共益費込)
- この部屋は成約済みです
| 物件名 | マルイトOBPタワー 【このビルのその他の募集階】 |
||
|---|---|---|---|
| 住所 | 大阪府大阪市中央区城見2丁目2番22号 OBP・京橋・ 森之宮でよく検索されるその他の物件 |
||
| 構造(規模) | 鉄骨造、地下鉄骨鉄筋コンクリート・鉄筋コンクリート造地上22階地下2階建 | ||
| 築年月 | 2005年7月1日 | ||
| 坪数 |
406.07坪 |
||
| 階数 | 6階 | ||
| 保証金 | - | ||
| 敷金 | - | ||
| 礼金 | - | ||
| 沿線 最寄駅 |
JR大阪環状線 京橋駅 徒歩5分 (京橋駅の賃貸事務所) 京阪線(本線・中之島線) 京橋駅 徒歩6分 (京橋駅の賃貸事務所) JR東西線 大阪城北詰駅 徒歩6分 (大阪城北詰駅の賃貸事務所) |
||
| アクセス | 新大阪駅まで電車20分 大阪駅梅田駅まで電車14分 関西空港まで電車58分、車45分 伊丹空港まで車20分 高速入口:環状線森之宮入口 |
||
| EV基数 | 8基 | 人荷EV基数 | 2基 |
| 空調タイプ | 個別 | ||
| 備考 | |||

ホテルを併設した商業ビルです。医療ゾーン、飲食店があり便利です。又天高3m等、高いスペックのオフィスです。
- お電話でお問い合わせ(無料)
-
平日13時までのお問い合わせで
当日に物件をご紹介!
お電話の場合「物件番号:A321204」
をお伝えください
