お気に入りを解除しました。
新大阪サンアールビル南館
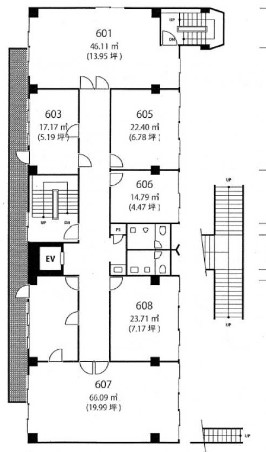
物件番号:D101104
6階5.19坪

- この物件の賃料の価格帯(共益費込)
- 坪@8,001円~@12,000円
| 物件名 | 新大阪サンアールビル南館 【このビルのその他の募集階】 続きを表示 ▼ |
||
|---|---|---|---|
| 住所 | 大阪府大阪市淀川区西中島1丁目11番4号 新大阪・西中島でよく検索されるその他の物件 |
||
| 構造(規模) | 鉄筋コンクリート造地上7階建 | ||
| 築年月 | 1979年5月1日 | ||
| 坪数 |
5.19坪 |
||
| 階数 | 6階 | ||
| 保証金 | |||
| 敷金 | 賃料の6カ月分 | ||
| 礼金 | - | ||
| 沿線 最寄駅 |
地下鉄御堂筋線 西中島南方駅 徒歩2分 (西中島南方駅の賃貸事務所) 地下鉄御堂筋線 新大阪駅 徒歩10分 (新大阪駅の賃貸事務所) JR東海道本線 新大阪駅 徒歩10分 (新大阪駅の賃貸事務所) |
||
| アクセス | 新大阪駅まで電車6分 大阪駅梅田駅まで電車12分 関西空港まで電車64分、車50分 伊丹空港まで車20分 高速入口:11号線加島入口 |
||
| EV基数 | 1基 | 人荷EV基数 | - |
| 空調タイプ | 個別 | ||
| 備考 | 地下鉄御堂筋線の西中島南方駅から徒歩3分。新大阪駅からは電車で6分 | ||

周辺環境が静かな淀川河川公園の目の前の角地に建っているオフィスビル。もちろん、南側の窓からは淀川を見渡すことができる眺望で、人気があります。2019年にエントランス、外壁のリニューアル工事を行い生まれ変わりました。
- お電話でお問い合わせ(無料)
-
平日13時までのお問い合わせで
当日に物件をご紹介!
お電話の場合「物件番号:D101104」
をお伝えください

