お気に入りを解除しました。
イーズメディテラスⅡ
物件番号:E105402
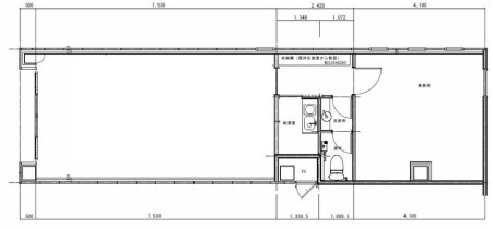
1階16.81坪

- この物件の賃料の価格帯(共益費込)
- この部屋は成約済みです
| 物件名 | イーズメディテラスⅡ 【このビルのその他の募集階】 |
||
|---|---|---|---|
| 住所 | 大阪府大阪市東淀川区東淡路4丁目30番2号 新大阪・西中島でよく検索されるその他の物件 |
||
| 構造(規模) | 鉄骨造地上6階建 | ||
| 築年月 | 2018年4月 | ||
| 坪数 |
16.81坪 |
||
| 階数 | 1階 | ||
| 保証金 | - | ||
| 敷金 | - | ||
| 礼金 | - | ||
| 沿線 最寄駅 |
地下鉄堺筋線 徒歩1分 |
||
| アクセス | 新大阪駅まで電車10分 大阪駅梅田駅まで電車10分 関西空港まで電車70分、車90分 伊丹空港まで車30分 |
||
| EV基数 | 2基 | 人荷EV基数 | - |
| 空調タイプ | 個別 | ||
| 備考 | |||
- お電話でお問い合わせ(無料)
-
平日13時までのお問い合わせで
当日に物件をご紹介!
お電話の場合「物件番号:E105402」
をお伝えください

