お気に入りを解除しました。
E-ma
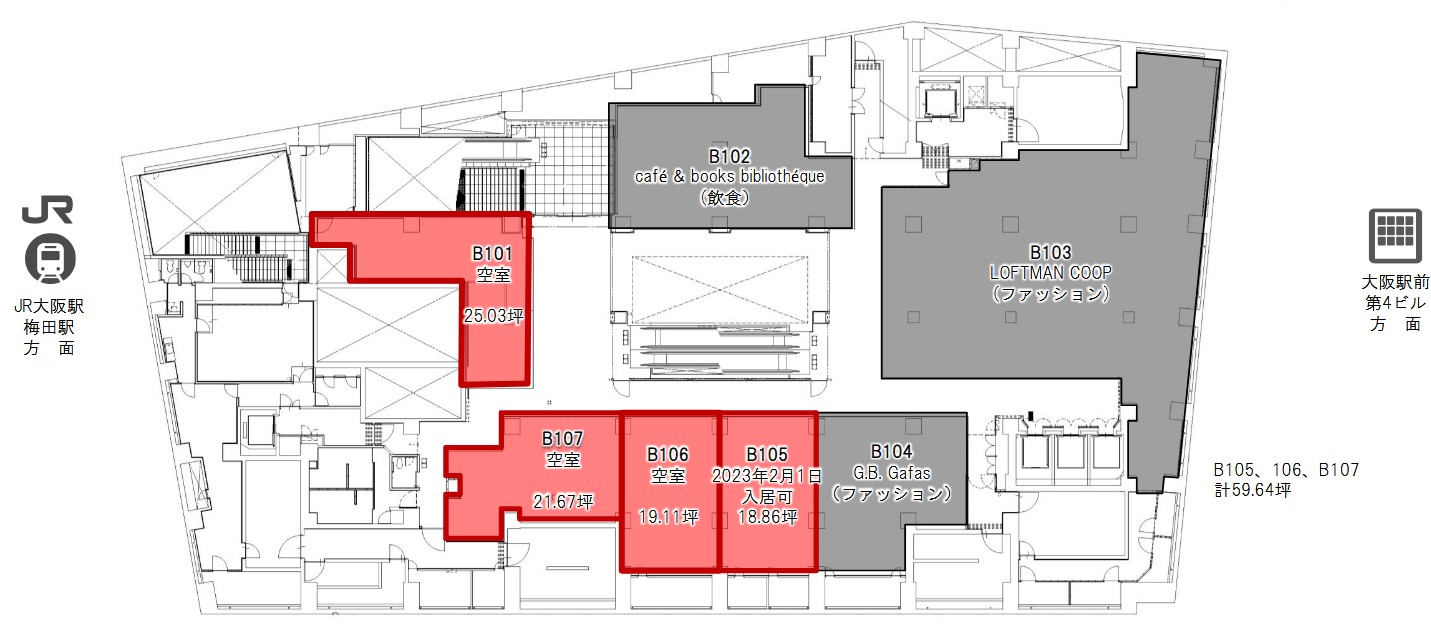
物件番号:C301112
地下1階19.11坪

- この物件の賃料の価格帯(共益費込)
- この部屋は成約済みです
| 物件名 | E-ma 【このビルのその他の募集階】 |
||
|---|---|---|---|
| 住所 | 大阪府大阪市北区梅田1丁目12番6号 梅田でよく検索されるその他の物件 |
||
| 構造(規模) | 鉄骨・鉄筋コンクリート造地下3階地上14階建 | ||
| 築年月 | 2002年4月 | ||
| 坪数 |
19.11坪 |
||
| 階数 | 地下1階 | ||
| 保証金 | - | ||
| 敷金 | - | ||
| 礼金 | - | ||
| 沿線 最寄駅 |
地下鉄谷町線 東梅田駅 徒歩1分 (東梅田駅の賃貸事務所) 地下鉄御堂筋線 梅田駅 徒歩3分 (梅田駅の賃貸事務所) JR大阪環状線 大阪駅 徒歩2分 (大阪駅の賃貸事務所) |
||
| アクセス | 新大阪駅まで電車8分 大阪駅梅田駅まで電車2分 関西空港まで電車59分 伊丹空港まで車20分 高速入口:環状線南森町・堂島入口 |
||
| EV基数 | 6基 | 人荷EV基数 | - |
| 空調タイプ | 集中 | ||
| 備考 | |||
- お電話でお問い合わせ(無料)
-
平日13時までのお問い合わせで
当日に物件をご紹介!
お電話の場合「物件番号:C301112」
をお伝えください

